S'il bénéficie d'une situation idéale sur le port de La Rochelle, cet appartement comportait son lot de contraintes. Sa surface réduite, nichée sous le toit mansardé d'un immeuble de trois étages, rendait son aménagement difficile. "
Les propriétaires voulaient mettre leur bien en location de courte durée en raison de la bassesse de son plafond et de ses 20 m² loi Carrez, pour 30 m² au sol", se rappellent Elodie Certenais et Thomas Yver, les fondateurs de l'agence Nomad Eleven, à qui a été confié le projet de rénovation.
En plus des contraintes structurelles du lieu, la décoratrice d'intérieur et le maître d'œuvre ont dû composer avec un budget limité. "
Nous avons dû trouver un concept pour faire quelque chose de bien sans dépenser trop d'argent et sans perdre de place", confie Elodie Certenais. L'idée retenue ? Jouer avec la couleur pour créer un intérêt malgré des volumes difficiles. Le tout avec peu de mobilier.
Fiche technique :
Emplacement : La Rochelle
Superficie : 20 m² loi Carrez, pour 30 m² au sol
Budget : 31.000 euros
Date des travaux : de février à mai 2024
Nomad Eleven, 17000, LA ROCHELLE, 06 77 20 63 48, contact@nomadeleven.fr

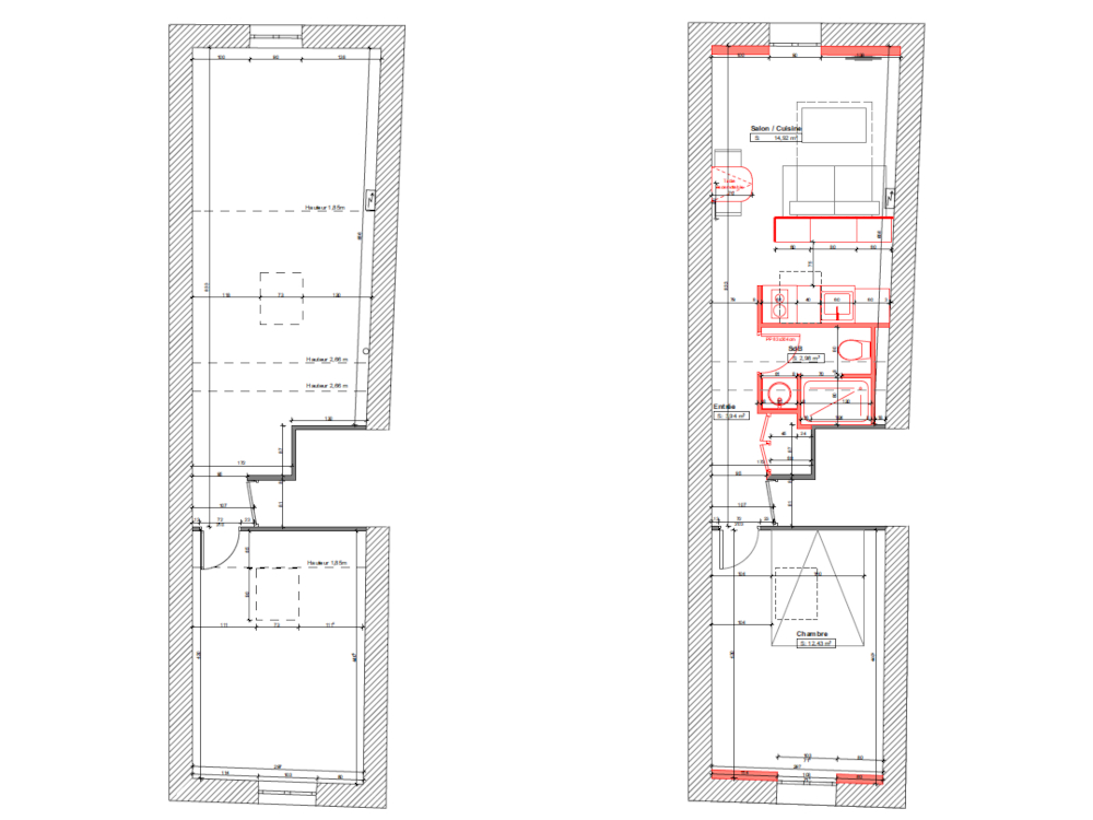
Plan avant et après © Nomad Eleven
Afin de respecter la contrainte liée au budget, le plan des lieux n'a pas connu de modification majeure et les réseaux sont restés au même endroit. Situé au cœur de l'appartement, le bloc humide bénéficie des plafonds les plus hauts et sert de point de départ à l'articulation des différents espaces. La salle de bain a simplement été rétrécie pour gagner de la hauteur au niveau de la cuisine.
Découvrez dans les pages suivantes, en images, la transformation de cet appartement.
L'appartement nécessitait quelques interventions
Vue de l'appartement avant la rénovation © Nomad Eleven
Avant. Voici ce à quoi ressemblait la pièce principale de l'appartement avant la rénovation. Tout n'était pas à refaire, sauf au niveau du mur de façade. "
Nous avons changé les fenêtres, refait tout le placo et l'isolation de cette paroi", précise Thomas Yver.
Les sols ont aussi été entièrement refaits, les murs enduits et l'électricité mise aux normes.
L'appartement nécessitait quelques interventions
La couleur au cœur du concept décoratif
La couleur au cœur du concept décoratif - La pièce de vie après rénovation © Laurence Combe
Après. La couleur jouant un rôle clé dans la transformation de l'appartement, la palette a été sélectionnée avec attention. "
Des teintes plus neutres n'auraient pas été assez conceptuelles et n'auraient pas donné d'intérêt à ce logement. Nous sommes donc partis sur quelque chose de très dynamique, inspiré de Marrakech avec le bleu Majorelle, le terracotta et le jaune pour la lumière", détaille Elodie Certenais. Le jaune a d'ailleurs été astucieusement utilisé pour agrandir le cadre de la fenêtre et donner l'impression d'une percée de lumière plus importante.
Le travail de la lumière a d'ailleurs fait l'objet d'une réflexion poussée. "
Si les Velux apportent pas mal de clarté dans la cuisine et dans la chambre, le coin salon n'était pas très lumineux. Nous avons donc multiplié les points d'éclairage pour compenser", explique la décoratrice.
La couleur au cœur du concept décoratif
Un coin repas stylisé
Le coin repas de l'appartement © Laurence Combe
Prenant place dans le seul passage de circulation de la pièce principale, le coin repas a été aménagé avec une table à manger rétractable. "
Nous avons joué sur la peinture, avec des arrondis et des arches, pour identifier les différents espaces et faire oublier tous les angles et les pentes très marqués de l'appartement. L'idée était de créer une atmosphère plus chaleureuse de cocon sous les toits", décrit Elodie Certenais.
Un coin repas stylisé
Une cuisine centrale
La cuisine © Laurence Combe
Avec la salle de bain, la cuisine fait partie des espaces bénéficiant de la plus belle hauteur sous plafond pour que son usage soit confortable. Elle a été entièrement refaite avec des meubles Ikea, une crédence carreaux de terre cuite de 20 x 20 centimètres. La finition arrondie rappelle les autres arches dessinées un peu partout dans l'appartement. Des appliques Zangra se chargent de l'ambiance lumineuse.
La plupart des rangements du logement est concentrée dans la cuisine. "
Nous avions travaillé une première version de l'aménagement avec des rangements sous les rampants, mais cela nécessitait un budget trop important et n'était pas vraiment justifié pour une location de courte durée", précise Elodie Certenais.
Une cuisine centrale
Se servir du peu de hauteur sous plafond
Autre vue de la pièce à vivre avant travaux © Nomad Eleven
Avant. Seules les cloisons de la salle de bain d'origine ont été modifiées pour réduire la superficie de la pièce au profit de celle de la cuisine. "
Nous avons travaillé plusieurs plans et envisagé de placer la cuisine perpendiculairement à la salle de bain. Mais nous nous sommes vite rendu compte qu'on se cognait souvent la tête", se souvient Elodie Certenais.
Se servir du peu de hauteur sous plafond
Optimiser les hauteurs
La pièce de vie rénovée © Laurence Combe
Après. Le canapé a été positionné le long du bar de la cuisine, doté de rangements supplémentaires, pour permettre une position assise et debout confortable. Il se trouve ainsi au même niveau que le coin repas. Le coffrage qui le surplombe cache le tableau électrique qu'il était impossible de déplacer.
Au sol, l'agence a préféré du PVC à un parquet massif pour sa facilité d'entretien et son coût intéressant. Tous les radiateurs d'origine ont été remplacés par des modèles à inertie, plus efficaces.
Optimiser les hauteurs
Une entrée optimisée
Vue sur l'entrée et la salle de bain © Laurence Combe
Derrière la cuisine se trouve l'entrée, qui dessert toutes les pièces de l'appartement : espace de vie, salle de bain et chambre. Un placard de 90 centimètres de long et 60 de profondeur, assez spacieux pour contenir l'aspirateur, les manteaux et le linge de maison, a trouvé sa place dans le renfoncement situé derrière la salle de bain.
En face, des cimaises accompagnent le motif en arrondi peint sur le mur, qui sert aussi de cadre au miroir.
Une entrée optimisée
Une salle de bain comme neuve
La nouvelle salle de bain © Laurence Combe
La salle de bain a été refaite à neuf. Elle allie carrelage imitation terrazzo au sol à des carreaux blancs de 10 x 10 centimètres. "
C'est une alternative petit budget intéressante, notamment si on les associe à des joints colorés pour gagner en originalité", estime Elodie Certenais. Le miroir est aussi large que le meuble-vasque pour augmenter la sensation d'espace et la robinetterie a été choisie blanche pour laisser la part belle au graphisme des joints colorés.
Une salle de bain comme neuve
Un couloir haut en couleurs
Le couloir après rénovation © Laurence Combe
Voici une autre vue du couloir qui s'ouvre sur la chambre, par la porte de laquelle on peut apercevoir les patères et la malle qui servent de rangement d'appoint.
Un couloir haut en couleurs
Une fuite à réparer
La chambre avant travaux © Nomad Eleven
Avant. La chambre a demandé des travaux plus conséquents alors qu'une fuite au niveau du toit avait endommagé le plafond. Elle a été réparée en même temps que le changement du Velux et toute l'isolation du plafond a été refaite.
Une fuite à réparer
Jeux de peinture jusque dans la chambre
La chambre après travaux © Laurence Combe
Après. Placée dans la partie la plus haute de plafond de la pièce, la tête de lit a été travaillée avec des arches et des rayures peintes en terracotta. La couleur a aussi été utilisée pour identifier les tables de nuit, réalisées à partir de simples tablettes.
"
Les volumes de l'appartement n'étaient pas adaptés pour une accumulation de meubles. Nous avons donc trouvé des astuces pour occuper visuellement les lieux tout en libérant les espaces", explique la décoratrice.
Jeux de peinture jusque dans la chambre
Une rénovation bien orchestrée
La tête de lit © Laurence Combe
Pari réussi pour l'agence Nomad Eleven qui a su insuffler du caractère à cet appartement tout en faisant oublier son plan rectiligne et ses pentes marquées. Les lieux sont assez cosy pour des locataires de passage qui ne manquent pas de remarquer sa décoration colorée.
Une rénovation bien orchestrée