Vue de l'appartement © Maison Kyka
Nous voici dans le premier investissement immobilier d'une jeune Parisienne. La propriétaire souhaitait acquérir une petite surface, comme tremplin vers un achat plus important dans le futur, qu'il serait également possible de mettre en location de courte durée. Pour l'accompagner dans son projet, elle a fait appel à Maison Kyka, séduite par la double expertise de l'agence en termes d'immobilier et de rénovation.
"
Lors de nos recherches entre Saint-Georges et Notre-Dame-de-Lorette, nous sommes tombés sur cette ancienne chambre de service située au sixième étage avec ascenseur d'un immeuble haussmannien. Nous avons tout de suite identifié la possibilité de racheter un morceau des parties communes de l'étage, ce qui nous a permis de révéler tout le potentiel du bien", se souvient Bertille Dobler, directrice artistique de Maison Kyka.
Fiche pratique :
Qui vit ici ? Une jeune propriétaire
Emplacement : Paris
Superficie : 16 m² loi Carrez, 23 m² au sol
Budget de rénovation : 46.800 €
Maison Kyka, 01 89 70 67 96

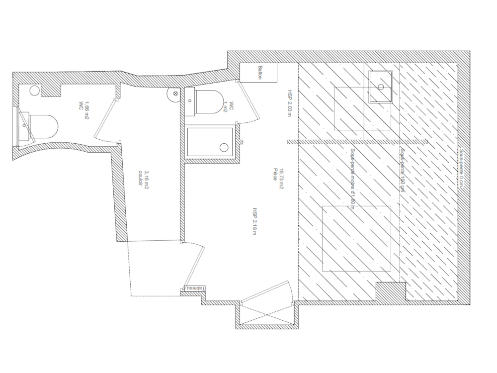
Plan de l'appartement avant les travaux © Maison Kyka
Avant. Le studio sous les toits ne faisait que 12 m² en loi Carrez, mais l'agence a rapidement identifié la possibilité de racheter les anciennes toilettes de service et une partie du couloir qui les desservait, ainsi que l'appartement. Cette opération permettait d'ajouter 4 m² à la superficie de l'appartement.
Situés sous les toits de Paris, les lieux disposaient déjà d'une belle luminosité grâce à la présence de deux fenêtres de toit avec de belles vues dégagées sur la capitale.

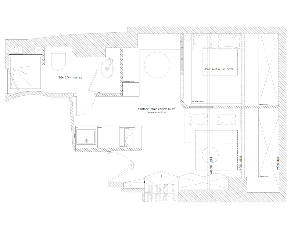
Plan de l'appartement après les travaux © Maison Kyka
Après. Trois mois se sont écoulés entre l'achat de l'appartement et la validation du rachat des parties communes, avec AG extraordinaire. La superficie des lieux est ainsi passée à 16 m² loi Carrez et 23 m² au sol.
"
Cela nous a permis de restructurer le plan de l'appartement pour créer un petit coin nuit, une vraie cuisine et une salle de bain", se félicite Bertille Dobler.
Découvrez dans les pages suivantes, en images, la transformation des lieux.