A Montmorency, dans le Val-d'Oise, cette magnifique maison ancienne de trois étages était divisée en plusieurs appartements. "
Vivant seule dans cette bâtisse de 350 m², l'ancienne propriétaire des lieux s'était installée au rez-de-chaussée et louait les logements situés dans les espaces supérieurs", raconte l'architecte d'intérieur Elodie Sierocki. Elle a donc aidé ses clients à reconnecter les deux premiers niveaux entre eux afin de créer un nouveau foyer assez grand pour y installer leur famille recomposée, avec pas moins de cinq chambres. "
Nous sommes partis d'une maison transformée en appartements pour la retransformer en maison", s'amuse l'architecte d'intérieur.
Son intervention n'a pas concerné le dernier étage de la maison, situé sous les combles, les nouveaux propriétaires n'ayant pas encore défini l'usage qu'ils souhaitaient en faire au moment du projet. Seul l'accès a été revu pour assurer son indépendance par rapport au reste du logement.
Fiche technique :
Qui vit ici ? Une famille recomposée avec quatre enfants
Emplacement : Montmorency
Superficie : 350 m²
Date des travaux : 2020
Budget : entre 2.000 et 2.500 euros du mètre carré
Elodie Sierocki, Elodie Sierocki Studio, 06.25.22.53.11

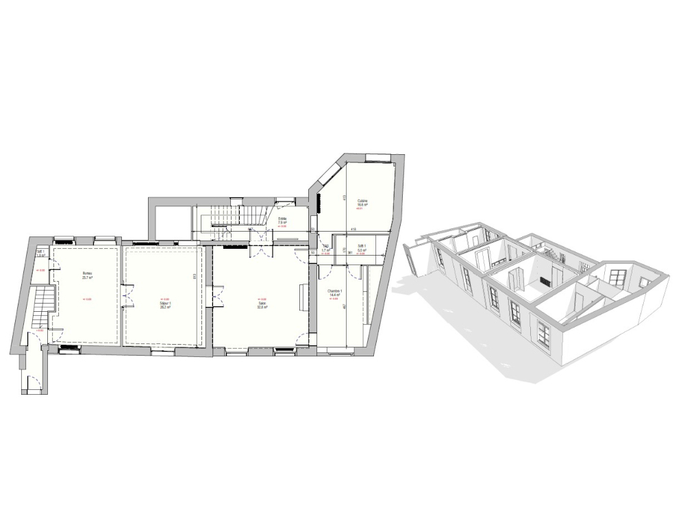
Plan du rez-de-chaussée avant travaux © Elodie Sierocki
Avant. L'ancienne propriétaire avait élu domicile au rez-de-chaussée de la bâtisse. L'entrée se faisait au niveau du grand escalier, qui donnait accès à ses quartiers tout en permettant aux locataires de rejoindre leurs appartements situés au premier étage. La surface confortable, de près de 100 m², comportait donc une cuisine, deux séjours, un bureau, une chambre et une salle de bain.

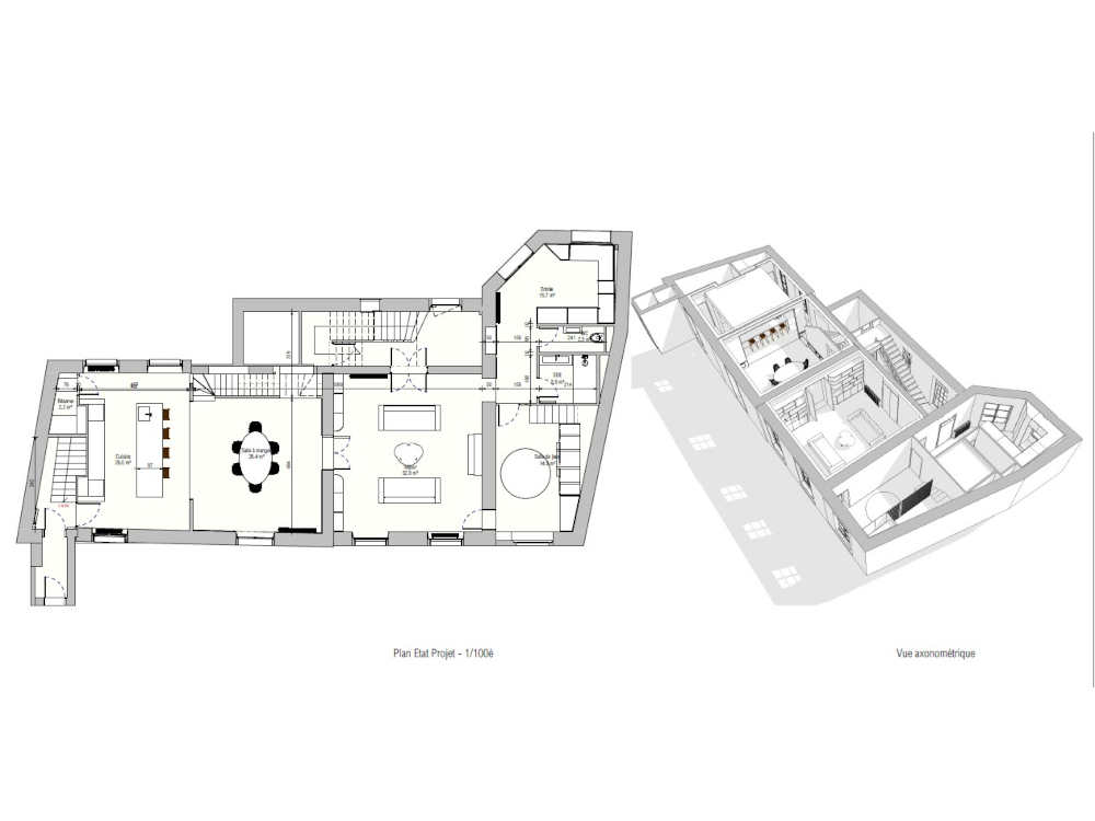
Plan du rez-de-chaussée après travaux © Elodie Sierocki
Après. Le plan du rez-de-chaussée a entièrement été remodelé pour créer un espace de vie confortable où profiter de la vie en famille. S'y trouvent désormais une cuisine, une salle à manger et un salon en enfilade, une entrée spacieuse et pratique, ainsi qu'une salle de jeu pour les deux plus jeunes enfants du couple.
"
Nous avons conservé et isolé le grand escalier qui dessert désormais le second étage de manière indépendante, et nous avons créé un nouvel escalier dans la salle à manger pour accéder au premier étage. Ainsi, les niveaux sont bien dissociés et les propriétaires se gardent l'opportunité de louer le second étage", explique l'architecte d'intérieur.
Découvrez dans les pages suivantes, en images, la transformation avant/après de cette maison impressionnante.
L'ancienne cuisine devenue entrée
L'ancienne cuisine du rez-de-chaussée © Elodie Sierocki
Avant. L'accès d'origine ayant été conservé pour le second niveau de la bâtisse, l'entrée se fait désormais par l'ancienne cuisine transformée à cet égard. De manière générale, les lieux, certes vieillots, avaient été bien entretenus et ne connaissaient pas de délabrement important. "
Il était simplement nécessaire de les rafraîchir et de les adapter aux besoins de la famille", précise Elodie Sierocki.
L'ancienne cuisine devenue entrée
Une entrée truffée de rangements
La nouvelle entrée © bcdf studio
Après. La cuisine existante a laissé place à de vastes placards sur mesure, assez grands pour accueillir toutes les affaires de la famille nombreuse. Une niche traitée en terracotta au niveau de la fenêtre apporte du dynamisme à l'ensemble. "
Mes clients n'étaient pas demandeurs de beaucoup de couleurs. Ils avaient simplement en tête un salon sombre. Pour le reste, nous avons simplement ajouté des petites touches de couleurs afin d'apporter du dynamisme", explique l'architecte d'intérieur.
L'entrée est la seule pièce du logement dotée d'un parquet neuf, en remplacement du carrelage flamé existant.
Une entrée truffée de rangements
Des atouts charme conservés
L'ancien salon © Elodie Sierocki
Avant. Dans les autres pièces du logement, le parquet d'origine a été conservé et rénové afin de faire revivre le charme de la vieille bâtisse. La rénovation a aussi été l'occasion d'entreprendre des travaux d'isolation des murs, les fenêtres étant déjà en double vitrage. "
Ce n'était pas vraiment une demande des clients mais, ingénieure de formation, j'essaie toujours de sensibiliser les propriétaires à ce sujet", raconte Elodie Sierocki, ingénieure thermique diplômée de l'ESTP, qui a travaillé en tant que spécialiste thermique au sein de Bouygues Construction avant de se reconvertir en architecture intérieure.
Des atouts charme conservés
L'élégance d'un salon sombre
L'élégance d'un salon sombre - Le nouveau salon © bcdf studio
Après. Les propriétaires ayant exprimé leur désir d'un salon sombre, l'architecte d'intérieur les a orientés vers une teinte de gris, disposée sur l'ensemble de la grande bibliothèque murale qui occupe les murs de la pièce. Au centre, une magnifique double porte s'ouvre sur la belle perspective créée par l'aménagement de la cuisine et de la salle à manger en enfilade.
L'élégance d'un salon sombre
Conserver les éléments d'époque
Le salon avant les travaux © Elodie Sierocki
Avant. Le salon, comme la plupart des pièces de la maison, était doté d'une belle cheminée d'époque qui a été préservée en l'état lors de la rénovation.
Conserver les éléments d'époque
Le charme se marie à l'élégance
Le charme se marie à l'élégance - Le nouveau salon © bcdf studio
Après. Elle se marie parfaitement avec la décoration élégante des nouveaux propriétaires, mise en valeur par le gris du salon.
Le charme se marie à l'élégance
Une salle à manger familiale
La nouvelle salle à manger © bcdf studio
Derrière le salon se trouve la nouvelle salle à manger dont la vue offre de belles perspectives et symétries, avec la cuisine dans la continuité. "
Nous avons créé une arche noire pour cadrer la cuisine, dont la cloison a été ouverte sur les espaces de vie", précise l'architecte d'intérieur.
Sur la droite de la photo, on aperçoit les premières marches du nouvel escalier menant au premier étage, où se trouvent toutes les chambres de la famille.
Une salle à manger familiale
Le bureau devenu cuisine
L'ancien bureau du rez-de-chaussée © Elodie Sierocki
Avant. Cette pièce, située tout au fond du rez-de-chaussée, était le bureau de l'ancienne propriétaire. Derrière les deux portes se trouvent des accès au jardin et à la cave, où a été aménagée une salle de cinéma qui n'a malheureusement pas été photographiée lors du shooting.
Le bureau devenu cuisine
Une cuisine sobre et intemporelle
La nouvelle cuisine © bcdf studio
Après. Il a laissé sa place à la nouvelle cuisine, dotée d'un grand îlot central où six personnes peuvent s'asseoir. Derrière, une petite réserve a été aménagée pour ajouter des rangements et l'accès au jardin permet de décharger les courses de la voiture plus facilement.
"
En termes de décoration, les clients voulaient quelque chose de sobre et intemporel, avec des matériaux de qualité. Nous sommes donc partis sur des façades laquées blanches, avec des poignées noires, du chêne rainuré en soubassement de l'îlot et un plan de travail en Dekton", décrit Elodie Sierocki.
Une cuisine sobre et intemporelle
Une chambre qui n'avait plus lieu d'être
L'ancienne chambre du rez-de-chaussée © Elodie Sierocki
Avant. La dernière pièce du rez-de-chaussée accueillait la chambre de l'ancienne propriétaire. Si les nouveaux ont pensé la conserver dans un premier temps, l'architecte d'intérieur les a convaincus d'en faire une salle de jeux pour leurs deux jeunes enfants. "
Ainsi, ils peuvent garder un œil sur eux quand ils profitent de leurs espaces de vie et éviter le danger des escaliers."
Une chambre qui n'avait plus lieu d'être
Le rêve de tout enfant
La nouvelle salle de jeux © bcdf studio
Après. L'aménagement de la pièce a de quoi faire le bonheur des petites filles, âgées de trois et quatre ans au moment de la rénovation. Le petit escalier permet d'accéder à la plateforme qu'elles aiment transformer en petites cabanes, à l'image du tunnel situé juste en dessous. De nombreux rangements ont aussi été créés pour les jouets et livres : des casiers de part et d'autre du tunnel aux placards situés en face. Tous les aménagements ont été réalisés sur mesure en placage bois.
"
Ce n'est pas tous les jours qu'on dédie une pièce de 15 m² aux enfants. C'était vraiment chouette de l'aménager", rend hommage Elodie Sierocki.
Juste derrière, entre l'entrée et ladite salle de jeu, se trouvent une salle de bain et des WC qui n'ont pas été photographiés.
Le rêve de tout enfant
Un nouvel accès vers les espaces de nuit
Le nouvel escalier camouflé © bcdf studio
De retour dans la salle à manger, zoom sur l'emplacement du nouvel escalier qui passe au-dessus de la niche terracotta. En plus de camoufler le radiateur dans un coffrage et d'ajouter une touche de couleur plus impactante, elle enrichit la pièce de petits rangements.
"
Nous avons ouvert une trémie à cet endroit pour installer le nouvel escalier sur mesure. Ce qui a vraiment représenté un défi en raison de l'importante hauteur sous plafond du rez-de-chaussée car il ne fallait pas que la descente des marches soit trop raide", souligne l'architecte d'intérieur.
L'escalier donne sur le palier du premier étage d'où il est possible d'apprécier la beauté des portes d'origine et la magnifique hauteur sous plafond du niveau. Le lustre était déjà présent et a simplement été déplacé.
Un nouvel accès vers les espaces de nuit
Trois logements à réunir
Plan du premier étage avant travaux © Elodie Sierocki
Avant. Les 100 m² environ du premier étage rassemblaient trois logements distincts, tous doté de leurs propres salles de bain et cuisine. Le réaménagement de l'espace a représenté un vrai casse-tête pour l'architecte d'intérieur.
Trois logements à réunir
Moduler l'espace pour créer cinq chambres
Plan du premier étage après travaux © Elodie Sierocki
Après. Il regroupe désormais tous les espaces de nuit de la famille. "
En dehors de la suite parentale, toutes les cloisons ont été revues pour créer les quatre chambres nécessaires et leur salle de bain. Ce qui a posé un gros problème en termes de raccord de parquet puisque nous avons souhaité conserver le cachet de l'ancien", se rappelle Elodie Sierocki.
Moduler l'espace pour créer cinq chambres
Un vaste salon devenu suite
L'ancien grand salon du premier étage © Elodie Sierocki
Avant. "
Au début, les clients voulaient garder ce grand salon au premier étage en plus de celui situé au rez-de-chaussée. Avec une superficie de 40 m², il s'agit de la pièce la plus grande de la maison et je trouvais cela dommage. Je leur ai donc proposé d'en faire une grande suite parentale et ils ont été séduits par l'idée", raconte l'architecte d'intérieur.
Elodie Sierocki a hésité à conserver la mezzanine d'origine mais s'est finalement résolue à la sacrifier pour mettre en valeur la très belle hauteur sous plafond de la pièce. C'est aussi ici que se trouvait le lustre déplacé sur le palier.
Un vaste salon devenu suite
Une suite parentale grand luxe
La nouvelle suite parentale © bcdf studio
Après. Arrivée dans la nouvelle suite parentale de 25 m², le regard est attiré par le magnifique papier peint qui habille la tête de lit. De part et d'autre, les deux portes sous tenture mènent à une salle de bain confortable d'un côté et à un dressing avec espace WC de l'autre.
Comme dans toutes les pièces de la maison, Elodie Sierocki a fait le choix de multiplier les sources d'éclairage pour permettre de moduler la lumière artificielle selon les besoins et les envies.
Une suite parentale grand luxe
Un espace bureau intégré
Un espace bureau intégré - La nouvelle suite parentale © bcdf studio
De l'autre côté du lit, la niche existante a été habillée d'un bleu profond pour créer un coin feutré où prend désormais place un bureau. Ici aussi la cheminée d'origine a été conservée en l'état pour préserver le charme de la maison ancienne.
Un espace bureau intégré
Une salle de bain élégante et intemporelle
La nouvelle salle de bain parentale © bcdf studio
Avec son espace baignoire et douche, la nouvelle salle de bain parentale a de quoi faire rêver. L'architecte d'intérieur a créé ici une esthétique épurée et intemporelle avec du béton ciré, du Corian pour le plan de travail et du placage chêne pour le meuble vasque. "
L'objectif était d'avoir un rendu qui plaise dans le temps et non quelque chose passé de mode au bout de quelques années seulement."
Une salle de bain élégante et intemporelle
Une zone enfants réaménagée
Le nouvel espace des enfants © bcdf studio
Les quatre enfants de la famille recomposée, deux ados et deux enfants en bas âge, se partagent le reste du premier étage. Si toutes les chambres n'ont pas été photographiées, on aperçoit sur les photos une autre des cheminées préservées dans l'une des pièces.
Dans le couloir, la professionnelle a eu l'idée de créer un grand dressing commun pour les deux plus jeunes enfants. Une belle astuce d'optimisation d'un espace de passage avec de grands rangements.
Une zone enfants réaménagée
Une cuisine devenue salle de bain
L'une des anciennes cuisines des appartements © Elodie Sierocki
Avant. Si les cloisons du premier étage, autrefois séparé en plusieurs appartements, ont entièrement été remaniées pour les besoins de la famille, les anciennes cuisines ont laissé place à des salles de bain.
Une cuisine devenue salle de bain
Une salle de bain tout en douceur
La nouvelle salle de bain des enfants © bcdf studio
Après. Dans la salle de bain des enfants, le carrelage mural a été choisi assez sobre en reprenant les teintes de celui du sol, plus contrasté avec un motif de petites fleurs. Les deux vasques posées sur un meuble Ikea permettent d'en fluidifier l'usage au quotidien, la salle de bain du rez-de-chaussée venant en renfort.
L'architecte d'intérieur Elodie Sierocki signe ici une rénovation d'exception avec un pari fou : refaire renaître une maison familiale ancienne en adaptant ses espaces aux besoins de ses nouveaux occupants, dans effacer son charme d'antan.
Une salle de bain tout en douceur