Dans le 20e arrondissement parisien, en fond de cour, comme dans une petite maison, ce loft en duplex de 65 m² se niche dans une ancienne usine de ressorts divisée en lots. La propriétaire, une Allemande travaillant dans le secteur bancaire, y vit depuis trois ans lorsqu'elle contacte l'agence d'architecture d'intérieur Ameo Concept. Sa première idée était de décaisser le rez-de-chaussée pour créer un souplex, mais, rebutée par la complexité et le coût des travaux, elle est désormais en quête d'optimisation. Passionnée de brocantes, elle possède en effet une accumulation d'objets chinés (avec une forte prédilection pour l'univers marin) qu'elle souhaiterait mettre en valeur dans un intérieur plus fonctionnel et plus chaleureux qu'au départ.
Pour Alicia Oustry, fondatrice de l'agence, ce chantier a été un vrai cas à part : "
Ici, il ne s'agissait pas d'enrichir classiquement le projet par de la prescription mobilier et déco, mais de partir d'un inventaire intégral établi par la cliente et de réussir à positionner un maximum d'éléments existants." Un exercice "
à l'envers", très exigeant, qui a conduit l'agence à miser avant tout sur le sur-mesure et sur une organisation millimétrée, jusqu'au calepinage mural de dizaines de tableaux, tous, bien sûr, de tailles différentes.
Fiche technique :
Qui vit ici ? Une propriétaire passionnée de brocante et ses deux chats
Emplacement : rue du Capitaine Ferber, Paris, 20e arrondissement
Superficie : environ 65 m² sur deux niveaux
Date des travaux : du 20 septembre au 25 mars (environ 6 mois)
Budget : environ 90.000 € (travaux)
Ameo Concept, 14 Vla Madeleine, 92320 Châtillon

Plan avant du projet © Ameo Concept
Avant. La propriétaire manque de place, en particulier au rez-de-chaussée. La cuisine est trop petite et mal positionnée. Une estrade héritée de l'ancien propriétaire mange de la surface utile et les rangements en dessous sont difficiles à exploiter. Enfin, l'escalier en colimaçon menant à l'étage est très inconfortable. L'objectif est d'optimiser drastiquement l'espace et de créer du rangement sans trahir l'esprit du loft.

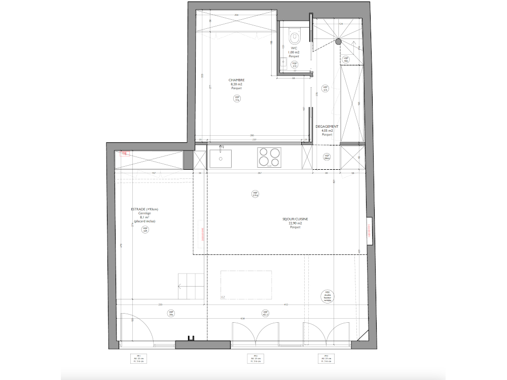
Plan après du projet © Ameo Concept
Après. La transformation s'appuie sur un principe simple : "
Tout espace est bon à prendre." L'entrée (en haut à gauche sur le plan) est rendue plus ouverte et fonctionnelle. La cuisine, déplacée, est dimensionnée pour exploiter la hauteur. La chambre-bureau s'ouvre et se cintre. L'escalier devient une pièce d'architecture utile en intégrant des rangements et une surprise. L'étage a été volontairement peu touché afin de concentrer le budget là où le changement de vie avait le plus d'impact.
Découvrez dans les pages suivantes, en images, la transformation avant et après de ce loft parisien.
Une entrée peu praticable
L'entrée avant la rénovation © Ameo Concept
Avant. L'entrée était assez désagréable. La différence de niveau avec la cour (on descendait d'une marche) nuisait à la praticité d'usage et l'estrade occupée par la salle à manger contraignait fortement l'espace et l'accueil.
Une entrée peu praticable
Une entrée plus fonctionnelle
L'entrée après la rénovation © Agathe Tissier
Après. Pour rattraper le dénivelé, un petit palier de forme cintrée a été créé : « Une solution simple qui évite de 'descendre direct' et rend l'arrivée plus confortable, notamment quand on rentre chargé », affirme Alicia Oustry. L'esprit d'optimisation maximale - fil rouge de cette rénovation - se lit dès ce palier dont l'épaisseur est exploitée en rangements à chaussures. Au-dessus se dévoile discrètement un téléviseur The Frame de Samsung. L'auriez-vous repéré ?
Une entrée plus fonctionnelle
Une base à habiller
Le loft avant travaux © Ameo Concept
Avant. Avec des murs voués à accueillir une grande densité de tableaux, d'étagères et de livres, le risque était de surcharger encore la perception de l'espace.
Une base à habiller
Le béton ciré calme le décor
Le loft après travaux © Agathe Tissier
Après. Au rez-de-chaussée, le parti pris fut d'unifier et d'apaiser la base avec un béton ciré pour laisser les murs "
raconter" l'univers de la propriétaire. "
La propriétaire était en phase et souhaitait un béton ciré. Un enduit Mercadier de teinte Mickael a été spatulé sur le sol", explique Alicia Oustry.
Le béton ciré calme le décor
Un manque de rangements
La pièce de vie avant travaux © Ameo Concept
Avant. Un des problèmes principaux était le manque de rangements : pour les livres et les objets d'art, mais également pour la caisse du chat et leur parcours santé (l'arbre à chats).
Un manque de rangements
Une bibliothèque tout hauteur
La pièce de vie après travaux © Agathe Tissier
Après. Sur la droite du canapé qui appartenait déjà à la propriétaire, une bibliothèque toute hauteur a été réalisée sur mesure en chêne et acier. Les montants de métal noir reprennent l'esprit industriel du lieu. "
Les étagères posées en quinconce sont pensées pour accueillir les promenades des chats, mais la propriétaire a déjà colonisé les lieux", plaisante Alicia.
Une bibliothèque tout hauteur
Une cuisine à revoir
La cuisine avant travaux © Ameo Concept
Avant. La cuisine existante s'appuyait sur le mur du fond, face à l'entrée. Placée sous la mezzanine, elle n'avait pas de rangement haut et la propriétaire manquait cruellement d'espace en plan de travail, compte tenu de sa large collection d'objets et de vaisselle.
Une cuisine à revoir
La cuisine déplacée exploite la hauteur
La nouvelle cuisine © Agathe Tissier
Après. "
La cliente avait besoin d'une cuisine beaucoup plus aménagée et beaucoup plus fonctionnelle. Elle avait notamment une collection impressionnante de tasses et de pots en laiton et cuivre", explique Alicia Oustry. La nouvelle cuisine s'étire sur un linéaire de 9,4 mètres, agencée en caissons Ikea et façades sur mesure en chêne verni naturel, surmontés d'un plan de travail et d'une crédence en granit noir Zimbabwe finition cuir (chiffrés autour de 2.500 €). A l'arrière, les collections de tasses et de pots, et même les maquettes de bateaux, sont bien mises en valeur sur les étagères, et l'horloge de marine accrochée en bonne place.
La cuisine déplacée exploite la hauteur
Une salle à manger en hauteur
Le coin repas avant travaux © Ameo Concept
Avant. La salle à manger s'organisait sur une grande estrade. Sur le papier, l'idée du demi-niveau semblait intéressante pour optimiser l'espace ; à l'usage, elle immobilisait de la surface, forçait la propriétaire à monter et descendre les bras chargés, et les "
rangements-cave" du dessous étaient quasi inutilisables.
Une salle à manger en hauteur
Une grande table sur mesure pour recevoir
Le nouveau coin repas © Agathe Tissier
Après. Le rez-de-chaussée a retrouvé un niveau unique, plus logique et plus pratique. Au centre, une table sur mesure pour six à huit personnes a été pensée pour tout faire : recevoir, travailler, et servir de pivot entre cuisine et salon. "
Notre cliente voulait aussi un grand espace pour recevoir ses amis… ce qui n'était pas trop possible avant avec la petite table en estrade. Nous avons créé cette table avec un morceau d'IPN en piètement pour le look industriel et un plateau en chêne massif en deux morceaux que l'entreprise a assemblés sur place", explique Alicia Oustry.
Une grande table sur mesure pour recevoir
Une chambre en second jour
Vue sur la chambre/bureau avant © Ameo Concept
Avant. Sur la gauche de la photo, derrière la crédence vitrée de l'ancienne cuisine, se trouvait une pièce servant de bureau et de chambre d'amis. La propriétaire désirait conserver ces fonctions.
Une chambre en second jour
Un bureau/chambre délicatement intégré
La nouvelle cloison © Agathe Tissier
Après. L'agence a mis l'accent sur le fait de garder une sensation d'ouverture dans ce loft où la lumière est précieuse. Elle a travaillé la fluidité de la circulation et les perspectives avec une paroi vitrée, dont une partie cintrée (verrière 83 × 115 centimètres sur allège de 90 centimètres, avec partie cintrée de rayon 67 centimètres). "
Cette écriture adoucit la rectitude de l'esprit industriel et rend la pièce plus habitée", explique Alicia. A l'avant de la chambre-bureau, on note au plafond le nouveau puits de lumière illuminant la table à manger.
Un bureau/chambre délicatement intégré
Une petite chambre/bureau sombre
La chambre/bureau avant la rénovation © Ameo Concept
Avant. Avant travaux, la chambre-bureau du RDC était une petite pièce dont le vitrage fixe de la fenêtre servait de crédence côté cuisine. L'ouverture se faisait côté couloir et escalier. La demande de la propriétaire était de retrouver de la lumière pour travailler en gardant une sensation d'ouverture vers l'extérieur.
Une petite chambre/bureau sombre
Un bureau/chambre mieux éclairé
La chambre/bureau après rénovation © Agathe Tissier
Après. La chambre d'appoint est désormais ouverte par deux portes coulissantes vitrées et une verrière cintrée en angle. Une vraie prouesse de réalisation ! "
En chauffant le verre feuilleté pour le cintrer, le vitrier a essuyé cinq casses avant que ce ne soit la bonne", partage Alicia. Un bureau suspendu prend place astucieusement dans l'angle, en toute légèreté. Pour l'usage "
chambre d'amis", l'occultation a été anticipée : des stores à lamelles ont été posés sur les parties vitrées.
"
Pour la petite histoire, la boule à facettes de la propriétaire a été électrifiée et tourne, et la lampe à bras sert à l'éclairer. On a également suspendu la lampe ange qu'elle aimait beaucoup au-dessus de son bureau pour lui tenir compagnie lorsqu'elle télétravaille", glisse l'architecte d'intérieur.
Un bureau/chambre mieux éclairé
Un escalier peu confortable
L'escalier avant la rénovation © Ameo Concept
Avant. Bien que compact, l'escalier en colimaçon existant était peu confortable et ne permettait aucun rangement.
Un escalier peu confortable
Un escalier plus confortable et plus utile
L'escalier après rénovation © Agathe Tissier
Après. Un nouvel escalier droit a été créé avec un limon maçonné et une finition en béton ciré spatulé. "
Cet escalier a même été recalculé en cours de chantier : après la création des premières marches, la cliente les a jugées trop étroites et l'agence les a élargies pour obtenir un giron plus confortable", explique Alicia Oustry.
Le garde-corps a été dessiné dans un esprit minimaliste, en écho aux fenêtres atelier et au style industriel du loft. La première séquence de marches, sans garde-corps, a été pensée pour rendre la montée plus facile depuis les toilettes. Sous l'escalier, des rangements pour les manteaux ont été intégrés, ainsi que la litière des chats, placée dans la partie basse derrière la petite découpe en forme de tête de chat. "
Une vraie surprise pour la propriétaire qui a été ravie de notre initiative", s'enthousiasme Alicia. A l'arrière, on distingue les interrupteurs regroupés sur le mur à proximité de l'escalier. "
Nous avons annoté tous les interrupteurs du rez-de-chaussée. Lorsque l'on monte à l'étage, on peut éteindre tous les éclairages du salon et de la cuisine en même temps. On aime proposer ce type de solutions électriques très pratiques", explique Alicia Oustry. Quant aux tableaux, au mur, tous sur le thème marin, ils ont été calepinés en 3D après une prise de côtes minutieuse. "
La propriétaire n'arrivait pas à les exposer tous : c'était une vraie demande de sa part de les sortir des cartons et d'en profiter au quotidien", partage la pro.
Un escalier plus confortable et plus utile
Un second niveau en mezzanine
Plan avant travaux © Ameo Concept
Avant. La mezzanine regroupe la chambre principale et la salle de bains. Elle était globalement fonctionnelle, bien que certains points techniques demandaient une mise à jour.
Un second niveau en mezzanine
A l'étage, interventions ciblées pour tenir le budget
Plan après travaux © Ameo Concept
Après. Pour respecter le budget de la propriétaire (rester sous les 100.000 euros), l'agence a fait le choix stratégique de se concentrer sur le rez-de-chaussée (sol, cuisine, table, bureau et escalier sur mesure) et de limiter le travail de l'étage à quelques ajustements, comme la réfection de la circulation ou le percement d'un puits de lumière sur le côté du lit afin d'éclairer davantage la table à manger placée en dessous.
A l'étage, interventions ciblées pour tenir le budget
Une chambre en bon état
La chambre avant travaux © Ameo Concept
Avant. La chambre de l'étage fonctionnait déjà. Dans une enveloppe budgétaire contrainte, l'agence a choisi de ne pas la rénover.
Une chambre en bon état
Une chambre à l'étage mieux organisée
La chambre après travaux © Agathe Tissier
Après. La chambre est restée volontairement inchangée. Le parquet a été conservé, et même l'étagère carrelée au-dessus du lit, qui fait office de table de chevet. Les travaux se sont concentrés sur le percement d'un puits de lumière supplémentaire, ce qui a requis une véritable expertise technique.
Une chambre à l'étage mieux organisée
Retouches mineures dans la salle de bains
La salle de bain après travaux © Agathe Tissier
La salle de bains existante était en bon état général. Sa verrière éclaire la chambre/bureau placée dessous.
La seule réfection a concerné la paroi de douche, remplacée par un modèle aux montants ateliers noirs afin de créer une continuité avec d'autres éléments industriels du loft. Les trésors chers à la propriétaire ont été réinstallés pour conférer à la salle de bains une atmosphère éclectique de cabinet de curiosités.
Retouches mineures dans la salle de bains
Changer sans déménager
Vue de la double hauteur © Agathe Tissier
Au terme de six mois de travaux pour un budget de 90.000 euros, la propriétaire dit avoir eu l'impression "
d'avoir changé d'appartement sans bouger".
"
Là où une partie de ses collections restait en cartons, faute de place et de logique, elle peut désormais assouvir pleinement son goût pour l'exposition. Œuvres, objets marins, livres et trouvailles de brocante ont tous trouvé leur place. Le loft est devenu un espace de vie et de réception plus vaste et plus pratique au quotidien, personnalisé par un décor galerie à son image, totalement assumé", partage Alicia pour conclure.
Changer sans déménager