Avant/Après : Quatre logements réunis pour une grande maison de famille
    Publié le 16 mars 2026 par Claire Tardy

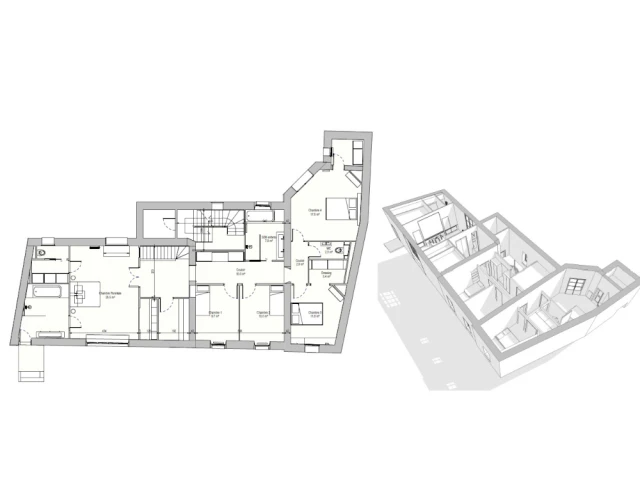
    Moduler l'espace pour créer cinq chambres

    15/22
    Plan du premier étage après travaux
    Plan du premier étage après travaux © Elodie Sierocki
    Après. Il regroupe désormais tous les espaces de nuit de la famille. "En dehors de la suite parentale, toutes les cloisons ont été revues pour créer les quatre chambres nécessaires et leur salle de bain. Ce qui a posé un gros problème en termes de raccord de parquet puisque nous avons souhaité conserver le cachet de l'ancien", se rappelle Elodie Sierocki.
    Moduler l'espace pour créer cinq chambres
    • Avant/Après : Quatre logements réunis pour une grande maison de famille
    • L'ancienne cuisine devenue entrée
    • Une entrée truffée de rangements
    • Des atouts charme conservés
    • L'élégance d'un salon sombre
    • Conserver les éléments d'époque
    • Le charme se marie à l'élégance
    • Une salle à manger familiale
    • Le bureau devenu cuisine
    • Une cuisine sobre et intemporelle
    • Une chambre qui n'avait plus lieu d'être
    • Le rêve de tout enfant
    • Un nouvel accès vers les espaces de nuit
    • Trois logements à réunir
    • Moduler l'espace pour créer cinq chambres
    • Un vaste salon devenu suite
    • Une suite parentale grand luxe
    • Un espace bureau intégré
    • Une salle de bain élégante et intemporelle
    • Une zone enfants réaménagée
    • Une cuisine devenue salle de bain
    • Une salle de bain tout en douceur
    Partagez cet article
    Articles qui devraient vous intéresser
     
    Recevez gratuitement
    La newsletter MAP
    L'e-magazine de l'habitat sous tous les angles
    Vous pouvez vous désabonner en un clic