"
C'est une jolie petite maison du début du siècle, avec un petit jardin très agréable", décrit l'architecte DPLG et architecte d'intérieur Régine Louiset, qui a rapidement été emballée par ce projet. La propriétaire venait de l'acheter et, consciente de la nécessité d'une rénovation énergétique, avait déjà entamé les démarches auprès de France Rénov pour son projet lorsqu'elle a contacté la professionnelle. "
Comme elle prévoyait de gagner plus de deux classes énergétiques au DPE, elle a pu obtenir des aides", poursuit Régine Louiset.
La rénovation était d'ampleur avec l'isolation d'une partie des murs par l'intérieur ou l'extérieur, des combles avec de la ouate de cellulose soufflée, l'installation d'un poêle à bois, d'une VMC hygroréglable et le remplacement de toutes les fenêtres en bois, pour des modèles plus étanches et avec un vitrage plus performant. Au final, l'architecte et sa cliente ont suivi toutes les préconisations du DPE pour remettre cette bâtisse aux normes actuelles, passant d'une classe G à D.
Fiche technique :
Qui vit ici ? Une propriétaire
Emplacement : Colombe
Superficie : 60 m², 80 m² avec le sous-sol aménagé
Date de livraison : été 2025 après 6 mois de travaux
Budget : 130.000 euros HT pour la rénovation intérieure (dont 40.000 euros pour les aménagements sur mesure) et 58.000 euros de rénovation énergétique (dont 23.000 euros pour les fenêtres et 15.000 euros pour l'ITE)
Régine Louiset, Régine Louiset Architecte

Plans avant et après du rez-de-chaussée © Régine Louiset
En plus de la rénovation énergétique, des changements structurels ont été réalisés à l'intérieur. Au rez-de-chaussée, tout un mur porteur a été déposé pour ouvrir la cuisine sur le salon et créer une pièce de vie de 25 m². "
Nous avons d'abord fait appel à un bureau d'études, qui a préconisé le renforcement de deux poutres et la reprise des poteaux porteurs en sous-sol pour assurer la descente des charges", explique Régine Louiset, soulignant l'ampleur des travaux. La séparation entre la salle à manger et le salon d'origine a aussi été supprimée.
L'architecte s'est ensuite attelé à recréer des cloisons partielles pour identifier les nouveaux espaces de la maison, créant ainsi un refuge chaleureux pour l'heureuse propriétaire.
Découvrez dans les pages suivantes, en images, la rénovation avant et après de cette petite maison de ville.
Une entrée cloisonnée
L'entrée avant les travaux © Régine Louiset
Avant. L'entrée se faisait dans un sas donnant sur l'escalier et séparé de la cuisine et du salon par des cloisons. Dans son ensemble, l'enveloppe des lieux était saine malgré une humidité importante en provenance du sous-sol. Les travaux ont aussi été l'occasion de refaire toute l'électricité et la plomberie.
Une entrée cloisonnée
Une entrée décloisonnée, mais bien identifiée
La nouvelle entrée © Laura Innocente
Après. L'entrée est désormais séparée de la cuisine par un meuble de rangements, doté de penderies, d'une banquette et d'une grille qui camoufle le radiateur. Une séparation partielle remplace également le mur qui se dressait entre elle et le salon, pour un rendu décloisonné et organisé.
"
En termes de décoration, la propriétaire savait ce qu'elle voulait : une ambiance inspirée de l'Art déco avec des couleurs fraîches. En plus du vert, je l'ai orientée vers des teintes chaudes, comme le terracotta de l'entrée pour créer un équilibre", raconte Régine Louiset.
Une entrée décloisonnée, mais bien identifiée
Un rez-de-chaussée complètement ouvert
Le rez-de-chaussée après les travaux © Laura Innocente
C'est à cet endroit que le mur porteur a été déposé, ouvrant complètement la cuisine sur la salle à manger et le salon. La porte d'origine a, quant à elle, été condamnée pour cloisonner partiellement l'entrée dans la maison.
Un rez-de-chaussée complètement ouvert
Une petite cuisine peu accueillante
L'ancienne cuisine © Régine Louiset
Avant. Fermée et d'une superficie de seulement 4,4 m², l'ancienne cuisine paraissait étriquée. Une impression renforcée par une décoration monochrome, dominée par le gris.
Une petite cuisine peu accueillante
Une cuisine pleine de fraicheur
Une cuisine pleine de fraicheur - La nouvelle cuisine © Laura Innocente
Après. La nouvelle cuisine a été aménagée avec des caissons Ikea, sublimés de portes sur mesure réalisées par des menuisiers. Physiquement agrandie, la zone apparaît aussi plus spacieuse grâce à un choix de couleurs soigné. L'architecte a aussi proposé d'aménager des rangements supplémentaires au niveau du coin repas, atténuant les frontières entre les deux zones.
Peintures : Ressources
Une cuisine pleine de fraicheur
Un petit salon aux décors obsolètes
L'ancien salon © Régine Louiset
Avant. L'une des particularités de cette maison, en plus de son enfilade de petites pièces, était la présence de lambris et de menuiseries encombrantes dans tous les espaces. "
Nous avons évidemment tout déposé et c'est ainsi que nous avons eu une belle surprise dans le salon en découvrant la rosace du plafond", se souvient Régine Louiset.
Un petit salon aux décors obsolètes
Le salon retrouve ses atouts
Le nouveau salon © Laura Innocente
Après. La cheminée d'origine a été conservée en l'état et tubée pour l'installation du nouveau poêle. Un meuble bibliothèque se fond également dans le décor grâce à une peinture ton sur ton.
Dans tous les espaces de vie, l'ancien carrelage a été remplacé par du parquet en chêne, sauf dans l'entrée et dans la cuisine où l'architecte a opté pour un carrelage coloré.
Le salon retrouve ses atouts
Une montée des marches terne
L'escalier avant les travaux © Régine Louiset
Avant. L'ancien escalier avait vraiment besoin d'être rafraîchi avec une rénovation des murs.
Une montée des marches terne
Un décor floral conduit à l'étage
Le nouvel escalier © Laura Innocente
Après. De retour dans l'entrée, se trouve la cage d'escalier qui mène à l'étage. C'est le seul endroit de la maison où les boiseries ont été conservées. Peintes en vert, elles se marient avec un papier peint floral qui accompagne la montée des marches.
Un décor floral conduit à l'étage
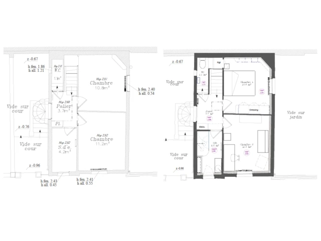
Un plan conservé en l'état
Les plans avant et après de l'étage © Régine Louiset
Le premier étage de la maison n'a pas été redistribué, l'organisation des pièces a été conservée en l'état. Il se compose d'un palier, d'une salle de bain, d'un WC et de deux chambres. L'une d'entre elles, qui n'a pas été photographiée, sert de chambre d'ami.
Un plan conservé en l'état
Un palier encombré
Le palier avant les travaux © Régine Louiset
Avant. Arrivé en haut de l'escalier, un ensemble de placards alourdissait l'espace, passant même au-dessus des portes des chambres et de la salle de bains.
Un palier encombré
Alléger sans perdre de place
Le palier après les travaux © Laura Innocente
Après. Pour alléger le palier sans perdre en surface de rangement, l'architecte a eu l'idée de remplacer les placards par des étagères ouvertes. Certains dessus de portes ont aussi été libérés pour un rendu plus doux.
Reprenant la même couleur verte que celle utilisée sur les soubassements de l'escalier, la nouvelle bibliothèque permet également de profiter de la fenêtre avec un coin lecture, comme une extension de la chambre à coucher.
Alléger sans perdre de place
Une chambre basique
L'ancienne chambre © Régine Louiset
Avant. Nous voici dans l'ancienne chambre qui est devenue celle de la propriétaire. Les aménagements existants étaient très basiques et manquaient de chaleur.
Une chambre basique
Une chambre tout en douceur
La nouvelle chambre © Laura Innocente
Après. La nouvelle chambre n'a plus rien à voir, avec ses teintes pastel et son dressing sur mesure aux portes habillées de raphia. Il s'agit d'un revêtement mural CMO.
Notons que le mur mitoyen de la maison a été isolé phoniquement à la demande de la propriétaire pour gagner en confort dans sa chambre.
Une chambre tout en douceur
Manque de fonctionnalité dans la salle de bain
L'ancienne salle de bain © Régine Louiset
Avant. La salle de bain existante n'était pas fonctionnelle, avec sa douche encombrée d'une grosse banquette.
Manque de fonctionnalité dans la salle de bain
Une salle de bain naturelle
La nouvelle salle de bain © Laura Innocente
Après. Tout le carrelage a été refait avec du terrazzo au sol et des carreaux effet terre cuite au niveau de la baignoire. Arrondie et dotée d'une colonne de douche, celle-ci remplace la douche d'origine.
"
Pour le meuble-vasque, ma cliente a chiné un meuble en seconde main et nous avons posé une vasque dessus", détaille Régine Louiset.
Une salle de bain naturelle
Un sous-sol humide
Le sous-sol avant la rénovation © Régine Louiset
Avant. Dénué de tout aménagement, le sous-sol était très humide. La propriétaire a demandé à Régine Louiset de l'aménager avec un coin rangement, une zone salon au frais pour l'été (qui n'ont pas été photographiés) et une buanderie. Une petite fenêtre a été ajoutée côté salon pour gagner en lumière.
Un sous-sol humide
Une buanderie très pratique
La buanderie © Laura Innocente
Après. L'architecte a préconisé l'installation d'une ventilation mécanique. Elle illumine la nouvelle buanderie, dotée d'un point d'eau pour le côté pratique. L'ensemble des murs ont été peints en blanc et le sol traité avec un revêtement en PVC aspect terrazzo.
Si la maison ne manquait déjà pas de charme, l'architecte et sa cliente sont parvenues à en faire un logement répondant aux standards contemporains et dont l'atmosphère chaleureuse ne peut que séduire ses occupants.
Une buanderie très pratique