"
Un peu campagne, pas trop parisien", tel était le point de départ du cahier des charges des propriétaires de cet appartement, désireux de créer « une bulle dans Paris ». Amélie Colombet, l'architecte d'intérieur retenue pour remplir ce défi raconte : "
L'ambiance des lieux devait les rapprocher de ce qu'ils aiment : être en dehors de Paris. Ils voulaient que leur logement marque une transition entre leur vie actuelle, très parisienne, et celle qu'ils envisagent pour l'avenir, en Bretagne."
Situé sous les toits, au quatrième étage d'un immeuble du 17e arrondissement, l'appartement de deux chambres était vétuste et nécessitait des travaux d'ampleur.
Fiche technique :
Qui vit ici ? Un couple sans enfant
Emplacement : Paris 17e
Superficie : 60 m²
Date des travaux : 2023
Budget : 80.000 euros
Amélie Colombet intérieurs - 11 bis rue Jean Baptiste Dumas 75017 Paris

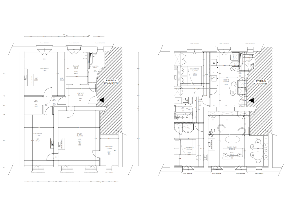
Plan avant et après de l'appartement © Amélie Colombet
Dans son jus, le bien était très cloisonné. "
Tout était à faire : remettre l'électricité et la plomberie aux normes, rattraper un dénivelé de 30 centimètres de part et d'autre de l'appartement, ouvrir les volumes, changer tous les sols, revoir les salles de bain…", se souvient Amélie Colombet.
L'architecte d'intérieur a donc entrepris d'agrandir le salon en lui annexant une ancienne pièce de rangement, de remodeler l'espace nuit pour réduire le couloir et avoir une salle de bain plus grande et de reprendre le sol. "
Le quartier des Batignolles est construit sur des carrières, les immeubles bougent énormément. Ce qui explique un tel dénivelé. Même avec la nouvelle chape, nous avons dû faire trois niveaux différents dans l'appartement", explique Amélie Colombet.
Découvrez dans les pages suivantes, en images, la transformation avant/après de l'appartement.
Un appartement très cloisonné
L'entrée avant travaux © Amélie Colombet
Avant. L'entrée dans l'appartement se faisait par ce sas fermé, desservant les toilettes et la cuisine sur la gauche. Les cloisons ont été déposées ou déplacées pour agrandir la cuisine et isoler les WC de la porte d'entrée.
Un appartement très cloisonné
Place au coin repas
Le coin repas de la nouvelle cuisine © Agathe Tissier
Après. Réduite, l'entrée se compose aujourd'hui d'un placard sur mesure pour les manteaux et les chaussures. Le reste de l'espace a été utilisé pour agrandir la cuisine d'un coin repas, séparé par un claustra. Il longe la paroi légèrement courbée qui mène aux WC, dont la superficie a été rétrécie.
Une VMC a aussi été installée, dissimulée dans le coffrage situé au-dessus de la fenêtre.
Place au coin repas
Une cuisine fermée
La cuisine avant les travaux © Amélie Colombet
Avant. L'emplacement de la cuisine n'a pas été modifié, mais celle-ci est désormais ouverte sur le reste de l'appartement.
Si les autres fenêtres du logement étaient en bon état, celle de la cuisine a été changée dans un souci d'isolation. "
Nous avons également isolé les combles et les sols, avec la nouvelle chape", précise Amélie Colombet.
Une cuisine fermée
Une cuisine au charme de la campagne
La cuisine après les travaux © Agathe Tissier
Après. L'ambiance bucolique souhaitée par les propriétaires est particulièrement présente dans la cuisine, qui a été entièrement réalisée sur mesure, avec ses angles en arrondi, dans un souci d'optimisation des espaces.
La zone de préparation des repas est identifiée par un papier peint fleuri de la marque Antoinette Poisson, qui réédite des modèles anciens. "
Nous avons opté pour une hotte Bora intégrée dans les plaques de cuisson, qui aspire toutes les projections et odeurs, évitant ainsi de salir le mur", justifie l'architecte d'intérieur.
L'ambiance rétro campagne est renforcée par les globes Zangra en appliques et le granito Mosaic Factory du sol. "
C'est plus facile à entretenir qu'un carreau de ciment et donne un côté rétro à la décoration", précise Amélie Colombet.
Une cuisine au charme de la campagne
Des espaces complètement ouverts
La cuisine vue du salon © Agathe Tissier
Amélie Colombet ne s'est pas contentée d'abattre les cloisons de l'appartement, elle a aussi proposé de récupérer les combles pour gagner en hauteur, donc en luminosité et en sensation d'espace. "
Nous n'avons pas cherché à les aménager car la pente était assez importante et on y tenait difficilement debout. Cela apporte toutefois beaucoup de lumière, de volume, et a permis l'ajout de deux Velux côté salon", explique l'architecte d'intérieur.
Les poutres ainsi mises à nu étaient saines. Elles ont été décapées pour retrouver leur charme rustique.
La cloison située entre le salon et la cuisine était porteuse. "
Nous ne l'avons pas déposée, mais nous avons agrandi l'ouverture de la porte et nous y avons adossé des bibliothèques sur mesure", détaille Amélie Colombet. La hauteur est volontairement dégagée pour gagner en sensation d'espace et laisser la lumière circuler.
Des espaces complètement ouverts
Un salon fermé
Le salon avant les travaux © Amélie Colombet
Avant. Le salon donnait sur une petite pièce de rangement, accessible par la porte située sur la gauche de la photo. Ses atouts charmes avaient pour la plupart disparu, à l'exception de la cheminée fonctionnelle, que l'architecte d'intérieur a déposée et reposée pour remplacer la dalle du sol par des zelliges.
Un salon fermé
Un salon ouvert sur la salle à manger
Le salon après les travaux © Agathe Tissier
Après. La petite pièce, à l'origine fermée, a été transformée en salle à manger. C'est à cet endroit qu'un Velux a été ajouté.
Pour l'aménagement du salon, de nombreuses pièces ont été chinées sur Selency, comme le canapé Togo, la table basse, ou encore les chaises et la table à manger du coin repas.
Un salon ouvert sur la salle à manger
L'esprit campagne jusque dans la salle à manger
La nouvelle salle à manger © Agathe Tissier
Le coin salle à manger est visuellement marqué par la présence du revêtement CMO en fibres naturelles sur le mur. "
Nous voulions éviter le mobilier très contemporain parisien, c'est pourquoi nous avons opté pour une table de ferme", précise Amélie Colombet.
Un rangement malin se cache sous les deux appliques Chiara Colombini en céramique, sous la forme d'un banc coffre.
L'esprit campagne jusque dans la salle à manger
Un coin nuit bien isolé
Perspective depuis le salon © Agathe Tissier
Repassons par l'entrée, en face de laquelle se trouve l'accès aux espaces nuit, derrière le meuble bibliothèque sur mesure.
Notons au passage la présence de la trappe au-dessus de l'entrée, derrière laquelle se cache un espace de rangement supplémentaire. "
Comme nous n'avions pas besoin de plus de hauteur au-dessus de l'entrée, nous y avons logé le ballon d'eau chaude", précise l'architecte d'intérieur.
Un coin nuit bien isolé
Des chambres désuètes, sans charme
La chambre avant travaux © Amélie Colombet
Avant. Dans les chambres, tous les éléments charme du logement avaient été déposés par les anciens propriétaires. "
Même s'il y a moins de choses à conserver que dans les haussmanniens, certains éléments d'origine, comme le poêle et les revêtements, avaient été supprimés", se remémore Amélie Colombet.
Des chambres désuètes, sans charme
Le charme retrouvé
La chambre après les travaux © Agathe Tissier
Après. Seules les portes anciennes ont été conservées. La décoration de la chambre est rehaussée par un papier peint fleuri, esprit cottage anglais. Les rangements ont été optimisés grâce à des aménagements sur mesure autour de la tête de lit.
La seconde chambre de l'appartement n'a pas été photographiée.
Le charme retrouvé
Une salle de bain tout en douceur
La salle de bain après les travaux © Agathe Tissier
Pour la salle de bains, l'architecte d'intérieur a dessiné un meuble qui intègre la vasque, le lave-linge et des rangements. Le tout dans une décoration bercée de teintes douces.
"
Je crée des intérieurs à vivre pour des familles, sans ostentation et compatibles avec le quotidien, je ne cherche pas à faire des choses luxueuses", conclut Amélie Colombet. Un défi réussi dans cet appartement où il fait désormais bon vivre.
Une salle de bain tout en douceur