Le studio vu depuis l'entrée © Flora Fourcade
Le seul atout de cette chambre de bonne vétuste, située au sixième étage d'un immeuble du 12e arrondissement de Paris, était certainement sa vue dégagée sur les toits de la capitale. "
Le studio de 15 m² était bien placé pour de la location de courte durée. Le propriétaire y avait déjà amorcé des travaux, mais avec des entreprises peu scrupuleuses qui avaient tout laissé en plan. Si les lieux étaient dans un piteux état, c'est leur valeur sentimentale qui a poussé le propriétaire à les rénover", raconte l'architecte d'intérieur Aurélie Taravella, de l'agence Vieni qua.
Qui vit ici ? Un étudiant
Emplacement : 12e arrondissement de Paris
Superficie : 15 m²
Date des travaux : de novembre à décembre 2024
Budget : 25.000 euros, plus 8.000 pour l'isolation des murs et du plafond
Aurélie Taravella, Vieni qua, 52 rue de l'Amiral Courbet, 94130 Nogent-sur-Marne Tél : 06 12 47 09 62

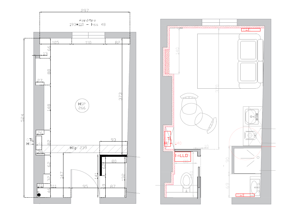
Plan avant et après du projet © Vieni qua
Le plan des lieux, en rectangle, était assez classique. Toutes les zones humides, toilettes et salle de bain, étaient situées à l'entrée et la chambre de bonne ne disposait pas de cuisine. La principale demande du propriétaire était donc de recaser toutes les fonctionnalités d'un appartement dans les 15 m² du studio, avec toilettes, salle de bains et cuisine.
"
Les possibilités d'aménagement étaient relativement limitées, les gaines techniques étant situées au niveau de l'entrée, qui faisait face à la seule fenêtre. Nous avons tout de même séparé les WC de la salle d'eau pour plus de confort", décrit Aurélie Taravella.
Découvrez dans les pages suivantes, en images, la rénovation du studio.