Le studio après les travaux © Sarah Khodri
Situé au 5e et avant-dernier étage sur cour et rue, ce studio doublement exposé souffrait d'un agencement d'un autre temps. Avec ses quatre portes concentrées sur un palier minuscule et une alcôve très sombre dans le séjour, l'appartement paraissait particulièrement fermé et exigu. Les propriétaires étaient en quête d'un vrai coin nuit, de lumière, de rangements et d'une simplification des volumes. Quant aux pièces d'eau, aménagées sommairement et peu pratiques, ils attendaient leur refonte complète. Sophie Boichon a relevé le défi en trois mois et demi, en restant sous leur enveloppe de 50.000 euros, sans faire l'impasse sur la menuiserie sur mesure et les idées inventives.
Fiche technique
Qui vit ici ? Le fils étudiant d'un couple de propriétaires
Emplacement : Paris, 15e arrondissement
Superficie : 23 m²
Entreprise de travaux : Journo-Spinella
Aménagement mural sur mesure : Bowood
Budget travaux : 38.000 €
Budget menuiserie : 8.000 €
Budget total : 46.000 €
Sophie Boichon, Décoration et Architecture d'Intérieur, 06 88 05 95 27

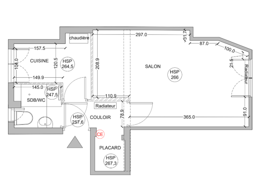
Plan avant travaux © Sophie Boichon
Avant. Bien que traversante, la petite surface pâtissait d'un plan très cloisonné. Le couloir d'entrée, qui desservait quatre portes et un placard, étouffait complètement l'accès. La pièce de vie ne bénéficiait pas de la double exposition, pénalisée notamment par une alcôve plongée dans l'ombre. La salle de bains et la cuisine, d'un autre âge, manquaient cruellement de fonctionnalité.

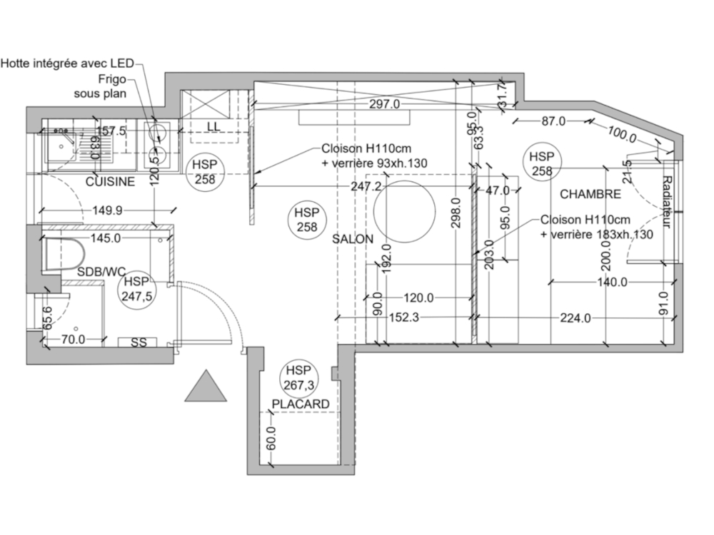
Plan après travaux © Sophie Boichon
Après. La suppression du couloir d'entrée et des cloisons existantes a permis d'ouvrir instantanément les perspectives. L'agencement a été repensé au moyen de deux semi-cloisons en quinconce surmontées de verrières pour différencier les espaces sans les fermer. « Le parti pris a été de supprimer le couloir d'entrée pour créer un espace ouvert et lumineux. Nous sommes également passés d'un chauffage collectif au gaz à un système électrique, ce qui nous a offert beaucoup plus de souplesse pour la transformation globale de l'espace puisque nous avons pu supprimer les tuyaux et les gros radiateurs », précise Sophie Boichon.
Découvrez dans les pages suivantes, en images, la transformation du petit appartement.