Retour en 2019, dans le 6ᵉ arrondissement de Paris, quand les propriétaires de ce 130 m² font appel à l'architecte d'intérieur Denise Omer pour rénover leur appartement familial avec créativité. "
Notre travail a trouvé une résonance très créative avec nos clients au goût très original et sûr. L'ambiance générale de l'appartement oscille entre classique et pop, l'empreinte culturelle des propriétaires ayant conforté l'esprit du projet par les objets et œuvres qu'ils y ont ajoutés", se souvient Denise Omer.
Quittant un loft pour s'installer dans un logement plus cossu avec ses deux enfants, le couple souhaitait conserver les atouts classiques de leur nouvel appartement haussmannien tout en créant un univers original, témoin de leur culture et de leur créativité. "
La cliente est quelqu'un de très inspiré et inspirant, au fait des tendances, elle avait beaucoup d'idées et a été très présente tout au long du projet. Très ouverte, elle a donné le ton", lui rend hommage l'architecte d'intérieur.
Fiche technique :
Qui vit ici ? Un couple et ses deux enfants
Emplacement : Paris, 6ᵉ
Superficie : 130 m²
Date des travaux : 2019
Budget : 200.000 euros
Denise Omer Design, 11 rue Tronchet - 75008 Paris - France

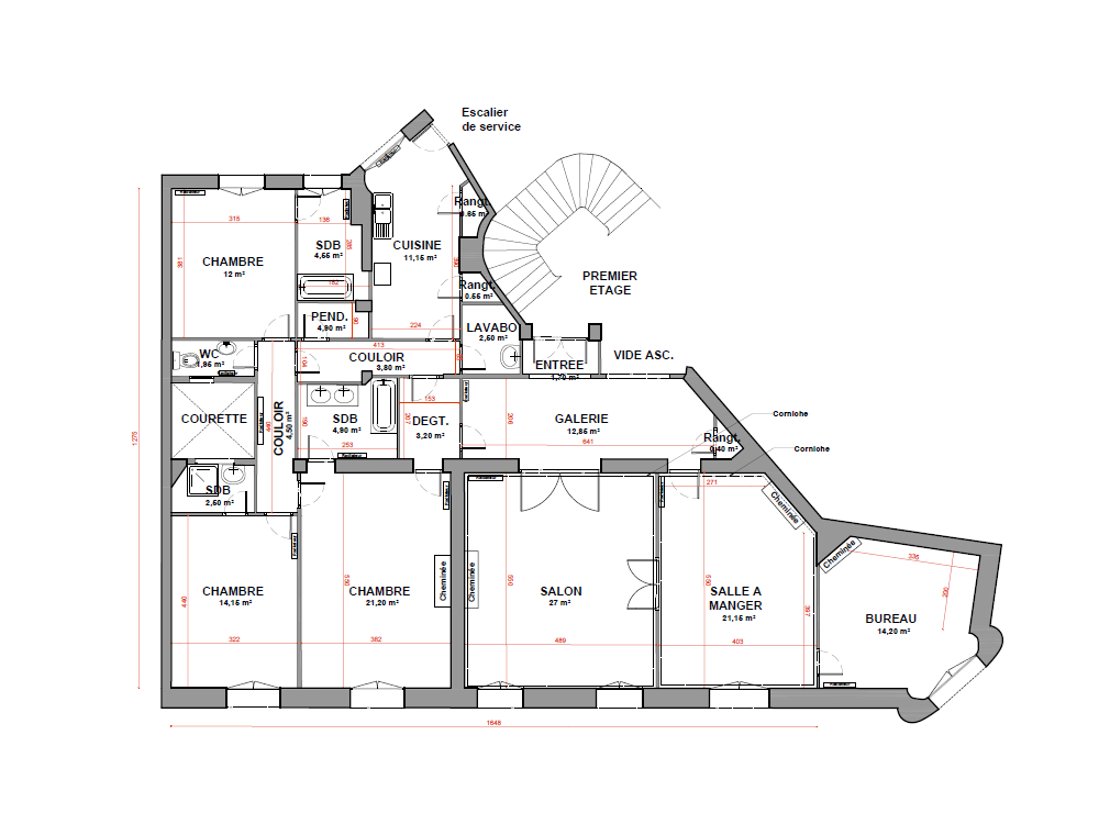
Plan de l'appartement avant la rénovation © Denise Omer
Avant. Idéal pour une famille, l'appartement comportait toute une enfilade de pièces : une cuisine, un salon et une salle à manger séparés, trois chambres, un bureau et deux salles de bain. Un dédale de couloirs permettait de naviguer entre les différents espaces, ce qui n'était pas au goût des jeunes propriétaires.

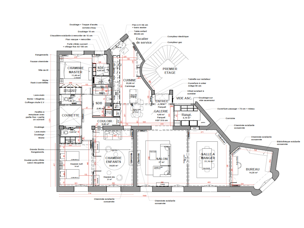
Plan de l'appartement après la rénovation © Denise Omer
Après. Le plus gros du travail de restructuration a été de décloisonner complètement l'espace situé au niveau de l'entrée pour créer une grande cuisine conviviale et accueillante, accessible dès le palier, cœur du logement. Pour le reste, la structure haussmannienne a été conservée et modernisée. Les couloirs ont été réduits, les deux chambres d'enfants réunies et les salles de bain quelque peu remodelées.
Pour l'accompagner dans cette rénovation, Denise Omer s'est entourée de deux entreprises de confiance : Moveis Mendès pour les menuiseries sur mesure et Opus Entreprise pour tout le gros œuvre.
Découvrez dans les pages suivantes, en images, la transformation avant/après de l'appartement.
Une cuisine reléguée en fond d'appartement
La cuisine avant les travaux © Denise Omer
Avant. Trop petite pour les besoins de la famille, la cuisine fait partie des principaux sujets de cette rénovation. "
Leur truc était d'avoir une super cuisine où tout le monde mange, qui sert aussi de pièce à vivre pour recevoir, travailler et pour les repas des enfants", raconte Denise Omer.
Si la cuisine est restée au même endroit, la pièce a été agrandie et l'espace entièrement décloisonné. "
Nous avons tout cassé pour relier la cuisine au salon, comme si elle était appelée par les espaces de vie", précise l'architecte d'intérieur.
Une cuisine reléguée en fond d'appartement
La cuisine donne le ton
La cuisine donne le ton - La nouvelle cuisine © Astrid Templier
Après. "
Quand nous lui avons proposé une cuisine rose, la propriétaire a d'abord dit non puis elle a cheminé et accepté l'idée très vite", explique Denise Omer. Ensemble, elles sont donc parties sur une tonalité corail, avec un sol en résine et des tonalités plus douces sur les façades.
Tout le mobilier a été réalisé sur mesure au Portugal, permettant de créer ces encadrements noirs qui apportent du relief à l'ensemble. "
Creux, les joints sont marqués par la structure des meubles", relève l'architecte d'intérieur. Toute hauteur afin d'intégrer un maximum de rangement et cacher la chaudière, les menuiseries sur mesure se terminent par une banquette rose où attabler les enfants pour les repas, en plus de l'îlot central.
La cuisine donne le ton
Un décloisonnement total
La cuisine pendant les travaux © Denise Omer
Avant. Pour décloisonner la zone entrée/cuisine, il a été nécessaire de déposer des murs porteurs. Une grosse reprise de structure a donc été indispensable avec la pose de plusieurs IPN.
Un décloisonnement total
La convivialité dès l'entrée
La nouvelle entrée © Astrid Templier
Après. L'entrée dans l'appartement se fait désormais presque dans la cuisine, comme une invitation à la convivialité. Seules la démarcation du sol et la couleur verte de la porte permettent d'identifier visuellement les deux espaces. "
Le motif chevron du parquet entre dans la résine, créant une transition douce entre les usages", détaille Denise Omer. Une belle manière d'intégrer les éléments classiques dans la modernité, comme cela a aussi été fait avec les moulures des murs.
La convivialité dès l'entrée
Une pièce dédiée au rangement
Le nouveau dressing © Astrid Templier
Toujours dans l'entrée, de l'autre côté de la cuisine, se trouve l'accès au vaste dressing de la famille, soit une pièce de 5 m² dédiée au rangement. "
La propriétaire voulait un espace pour stocker toutes les valises et les chaussures. Des dressings dans chaque chambre viennent compléter ces rangements", décrit l'architecte d'intérieur.
L'accès a été travaillé en arche et fermé par un rideau pour jouer sur une atmosphère théâtrale. "
A l'époque de cette rénovation, nous n'avions pas l'habitude de faire des arrondis en aménagement intérieur. J'ai tout de suite été séduite par l'idée", ajoute Denise Omer.
Une pièce dédiée au rangement
Un salon aux atouts charme
Le salon avant les travaux © Denise Omer
Avant. Le salon disposait de tous les attributs qui font le charme des appartements haussmanniens : parquet ancien en chevrons, belles moulures, cheminée. Tous ont été conservés et sublimés par l'ajout d'un décor plus contemporain.
Un salon aux atouts charme
Quand le classique rencontre l'art contemporain
Le nouveau salon © Astrid Templier
Après. "
Dans le salon, nous avons misé sur des couleurs contemporaines pour moderniser les lieux en leur donnant un côté Memphis", raconte l'architecte d'intérieur. Recouverte d'un revêtement bleu Klein avec des éclats de noir, la cheminée se détache sur des murs roses couleur Malabar pour la signature pop.
Quand le classique rencontre l'art contemporain
Un mobilier sélectionné avec goût
Un mobilier sélectionné avec goût - Le nouveau salon © Astrid Templier
Les lieux ont été meublés avec le mobilier dont disposaient déjà les propriétaires. Ils ont également sélectionné toutes les œuvres d'art contemporaines qui apportent du caractère à cette décoration par leur audace.
Un mobilier sélectionné avec goût
Une salle à manger classique
La salle à manger avant les travaux © Denise Omer
Avant. La salle à manger n'a pas été déplacée, ni décloisonnée sur le salon. Davantage considérée comme une pièce d'apparat par les propriétaires, elle a été traitée comme telle.
Une salle à manger classique
L'élégance mise en valeur
La nouvelle salle à manger © Astrid Templier
Après. Les moulures d'origine mettent aujourd'hui en valeur un magnifique papier peint Ananbô sur mesure, dont le paysage représenté invite à l'évasion. Il s'étend sur tous les murs de la pièce, créant comme un tableau depuis le salon.
L'élégance mise en valeur
Un bureau propice à la concentration
Le bureau après les travaux © Astrid Templier
Derrière la salle à manger, niché dans l'angle de l'appartement, se trouve le bureau. Traité en bleu profond, il adopte une ambiance feutrée et chaleureuse.
Un bureau propice à la concentration
Une chambre à rajeunir
La chambre parentale avant les travaux © Denise Omer
Avant. Les trois chambres de l'appartement n'ont pas subi de transformation majeure. Seule leur décoration a été modifiée selon le goût des nouveaux propriétaires et des dressings créés sur mesure pour combler les besoins de rangement de la famille.
Une chambre à rajeunir
Une chambre inspirée des hôtels
La nouvelle chambre parentale © Astrid Templier
Après. Les propriétaires étant habitués à beaucoup voyager, ils souhaitaient une chambre simple et épurée à l'image de celles que l'on trouve dans les hôtels. Son équipement se limite donc à un lit, des tables de chevet et un dressing en cannage, sublimés par une décoration apaisante.
Une chambre inspirée des hôtels
Chacun sa salle de bain
La salle de bain parentale © Astrid Templier
Les parents disposent de leur propre salle de bain, où la baignoire d'origine a été remplacée par une douche confortable. Les couleurs sont aussi à l'honneur dans cette pièce, qui reprend une nouvelle fois les codes du style Memphis avec ses aplats de couleurs géométriques soulignés de noir.
Chacun sa salle de bain
Deux chambres réunies
Les chambres d'enfants avant la rénovation © Denise Omer
Avant. Les deux autres chambres dédiées aux enfants ont été réunies pour créer un espace de jeu et un autre pour le sommeil. "
Pour ma cliente, les chambres sont vraiment des espaces faits pour dormir. Les autres activités doivent avoir lieu dans d'autres pièces", explique Denise Omer.
Deux chambres réunies
Un espace commun pour les enfants
Le nouvel espace dédié aux enfants © Astrid Templier
Après. L'une des deux chambres d'origine est donc consacrée à la partie nuit avec deux lits jumeaux, quand l'espace de jeu prend place dans la seconde chambre. Les deux pièces sont reliées par une ouverture latérale, permettant de bien distinguer les deux usages.
Un espace commun pour les enfants
Une salle de bain à la déco ludique
La salle de bain des enfants © Astrid Templier
La salle de bain des enfants a conservé sa baignoire et l'ensemble des murs ont été calepinés avec des carreaux blancs. Deux niches colorées apportent du peps à l'ensemble.
Une salle de bain à la déco ludique
De la couleur jusque dans les WC
Les WC après les travaux © Astrid Templier
Chaque pièce se singularise par un mélange de couleurs audacieux et assumé, et ce jusque dans les WC où les teintes primaires sont à l'honneur. "
C'était formidable et très agréable de travailler avec des clients comme cela. La propriétaire avait des idées, on débattait ensemble et on allait encore plus loin dans nos choix", se souvient Denise Omer.
De la couleur jusque dans les WC