Le salon après les travaux © Julien Pepy
Construite dans les années 1980, cette maison de Boulogne-Billancourt déploie ses 270 m² sur quatre niveaux, jusqu'à un toit-terrasse. Restée fidèle à l'esthétique de son époque, elle ne correspondait plus aux attentes de ses nouveaux propriétaires, une famille avec trois enfants, dont deux adolescents. Désireux d'y insuffler davantage de chaleur et de convivialité, ils ont confié sa transformation à l'agence d'architecture intérieure d'Ussel & Decoster, avec pour ambition d'adapter les lieux à leur mode de vie et à leurs envies.
"
La maison était superbe et en bon état, mais ses grands espaces étaient plutôt froids. La propriétaire étant particulièrement attachée au Maroc, elle souhaitait une atmosphère plus chaleureuse avec des zelliges et des couleurs chaudes, comme le terracotta", raconte l'architecte d'intérieur Lucie Decoster.
Fiche technique :
Qui vit ici ? Un couple avec trois enfants
Emplacement : Boulogne-Billancourt
Superficie : 270 m²
Date des travaux : 2025
Durée des travaux : trois mois
Budget : 160.000 euros, hors fournitures
Société de travaux : SP Elire
Agence d'Ussel & Decoster, design d'intérieur

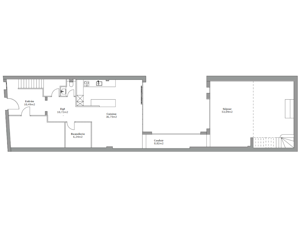
Plan du rez-de-chaussée avant les travaux © Ussel & Decoster
Avant. Les travaux n'ont concerné que les deux premiers niveaux de la maison, le second étage étant celui des enfants. Au rez-de-chaussée se trouvaient une entrée ouverte sur un dégagement, avec l'accès aux WC et à la buanderie, une cuisine, une salle à manger et un salon-salle à manger. "
La cuisine de 40 m² semblait très vide, le couloir qui longe le patio ne disposait d'aucun aménagement et le toit cathédrale du séjour n'était pas du tout exploité", détaille Lucie Decoster.

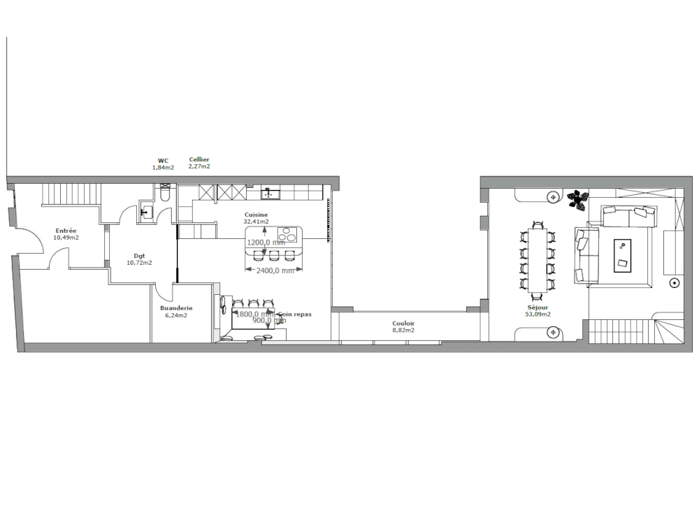
Plan du rez-de-chaussée après les travaux © Ussel & Decoster
Après. Les travaux ont été l'occasion de recloisonner l'entrée à l'aide d'une belle verrière, pour l'isoler des espaces de vie, d'ouvrir la cuisine, en l'agrémentant d'un coin repas familial, et d'optimiser le séjour en tirant parti de la hauteur sous plafond de la pièce, surmontée d'une mezzanine.
L'aménagement et l'apport de chaleur dans les espaces étaient les principaux défis de ce projet, qui n'a nécessité qu'une rénovation partielle en termes d'électricité et de plomberie.
Découvrez dans les pages suivantes, en images, la transformation avant/après des différents espaces de cette maison.