Bien que cet appartement de 133 m² bénéficie d'un emplacement idéal, en plein cœur de Bordeaux, sa transformation nécessitait une véritable capacité de projection. Situés au sixième étage sous les toits d'un immeuble ancien, les lieux étaient contraints par une hauteur sous plafond peu développée et une faible pénétration de la lumière. Le nouveau propriétaire, un investisseur désireux de faire une plus-value, a donc fait appel à l'agence Little Worker pour transformer le plateau en appartement confortable.
"
Nous sommes intervenus sur le choix des matériaux, sur la partie technique de l'aménagement et sur le suivi de chantier de la rénovation. Tout le mobilier a ensuite été choisi par le propriétaire. L'objectif était de créer un logement idéal pour un couple d'actifs avec enfants, en restant dans une atmosphère intemporelle, capable de plaire à un maximum de personnes", raconte Jérémy Cocq, architecte d'intérieur et chef de projet conception au sein de l'agence Little Worker. Avec ses équipes, il est parvenu à créer un appartement de trois chambres avec terrasse tropézienne.
Fiche technique :
Qui vit ici ? L'appartement est pensé pour un couple avec enfants
Emplacement : au centre de Bordeaux
Superficie : 133 m², sans la tropézienne de 18 m²
Date des travaux : 2025
Durée des travaux : 4,5 mois
Budget : 250.000 euros

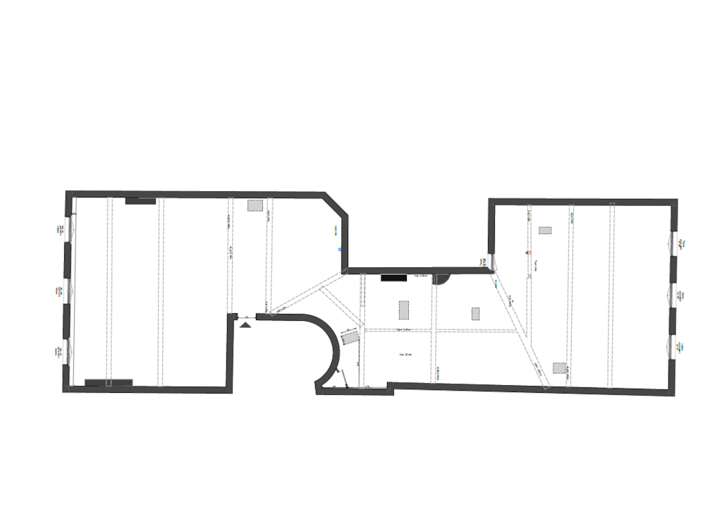
Plan de l'appartement avant la rénovation © Little Worker
Avant. Ce grand plateau de plus de 150 m² est né de la réunion de deux appartements et de parties communes, tous situés au dernier étage d'un immeuble. Pour contrer les contraintes d'origine, à savoir le manque de lumière et la faible hauteur sous plafond, la possibilité d'ouvrir le toit pour créer une tropézienne a tout de suite été abordée. "
Nous avons travaillé avec une architecte pour le dessin et l'aspect technique de cette ouverture de toiture", précise Jérémy Cocq.
Avant même de penser le nouvel aménagement, les équipes de Little Worker ont procédé à un curetage complet du plateau afin de repartir d'une page blanche. "
Cela permet aussi d'éviter les ralentissements liés aux mauvaises ou bonnes découvertes faites lors de la phase de démolition", explique Jérémy Cocq. Le projet a ainsi été réajusté en fonction des problématiques de plomberie et de la hauteur sous plafond récupérée.

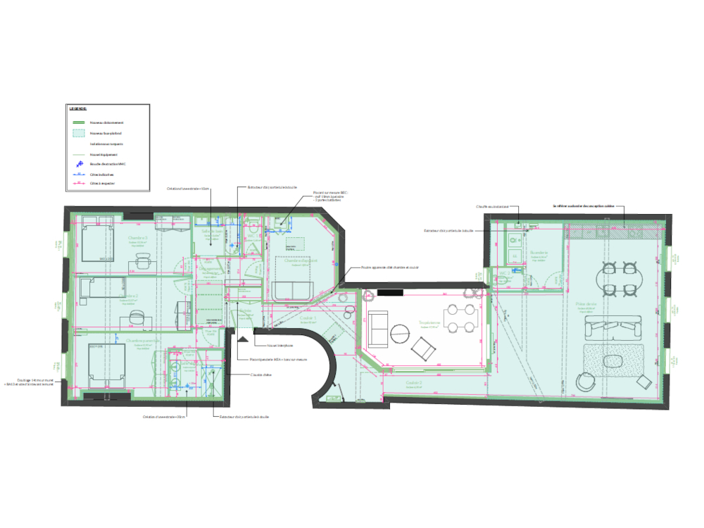
Plan de l'appartement après la rénovation © Little Worker
Après. Couplé à la pose d'un grand Velux triple dans le dégagement des chambres, la création de la tropézienne a permis d'inonder les lieux de lumière naturelle, changeant du tout au tout les perspectives de cette rénovation. D'un côté de la tropézienne prend place l'espace de vie entièrement ouvert, quand les trois chambres et deux salles de bains se nichent de l'autre côté.
"
Au niveau du couloir, nous avons aussi décidé de travailler l'angle en biseau pour faciliter l'acheminement de mobilier et de matériaux dans la pièce de vie", précise Jérémy Cocq.
Découvrez dans les pages suivantes, en images, la transformation de l'appartement.
Une zone de rangement quasi-morte
La tropézienne avant la rénovation © Yannick Bacqué
Avant. Cette pièce de 18 m², considérée comme un grenier, constituait une zone quasi-morte, à peine aménagée en espace de rangement en raison de sa très faible hauteur sous plafond. C'est à cet endroit qu'il a été décidé d'ouvrir le toit pour créer la tropézienne. "
Nous sommes simplement venu enlever le chapeau de toiture tout en conservant le muret, dont la hauteur était réglementaire pour faire un pare-muret", raconte Jérémy Cocq.
En termes de démarches administratives, seul le dépôt en mairie d'une déclaration préalable a été nécessaire, avec un délai d'instruction de deux mois. Une démarche dont s'est chargée l'architecte Andrea Celis, de l'agence Nuni Architecture, qui a accompagné le projet.
Une zone de rangement quasi-morte
La création d'une grande terrasse préservée
La tropézienne après la rénovation © Yannick Bacqué
Après. La création de cette grande terrasse ne s'est pas faite sans son lot de contraintes. "
Nous avons dû déposer le plancher et recréer une étanchéité avant de poser de nouvelles lambourdes pour le plancher final. Sur les deux conduits de cheminée existants, nous en avons conservé un et supprimé l'autre. Nous avons également isolé les murs côté intérieur pour éviter les déperditions de chaleur", précise le responsable du projet.
Mais la vraie difficulté concernait la reprise de charpente suite à la suppression d'une partie de la toiture. "
L'enjeu était d'identifier les poutres qu'il fallait découper et de respecter la pente existante de la toiture. Nous avons fait appel à un bureau d'études qui a préconisé le remplacement de la poutre déposée au-dessus de l'espace terrasse par une autre poutre structure au niveau du couloir", détaille Jérémy Cocq.
Celle-ci passe au-dessus de la nouvelle belle vitrée qui ouvre la quasi-totalité du couloir sur la terrasse. Une autre baie fixe vient inonder l'espace salon de lumière.
La création d'une grande terrasse préservée
Créer un logement efficace sur le plan énergétique
La pièce de vie avant la rénovation © Yannick Bacqué
Avant. Voici la pièce de vie après le curetage des lieux et avant la rénovation. Les travaux ont été l'occasion de repartir à zéro sur le plan thermique. "
Nous avons isolé tous les murs extérieurs et les rampants avec de la laine de verre, en optant pour un isolant de faible épaisseur au niveau du couloir pour ne pas avoir un espace trop étroit, remplacé toutes les fenêtres, posé des Velux performants, installé des radiateurs à inertie douce et un ballon d'eau chaude économique", détaille Jérémy Cocq. Fort de ces investissements, le logement est passé d'une classe énergétique E à A.
Si l'installation d'une PAC air-air avait été envisagée pour garantir le confort d'été, elle a finalement été écartée, la circulation des réseaux se révélant trop complexe au sein de la charpente.
Créer un logement efficace sur le plan énergétique
Une pièce de vie inondée de lumière
La pièce de vie après la rénovation © Yannick Bacqué
Après. En plus du gain évident de lumière naturelle dû à la création de la tropézienne, la pièce de vie a gagné en hauteur sous plafond. Grâce à la dépose des anciens faux plafonds, elle atteint aujourd'hui 2,70 mètres au niveau le plus haut et 2,50 mètres en dessous des poutres.
Une pièce de vie inondée de lumière
Conserver le cachet de l'ancien
La cuisine avant la rénovation © Yannick Bacqué
Avant. Bien que peu d'éléments des anciens logements étaient à conserver, le parquet d'origine a été poncé pour habiller le sol du nouvel appartement. "
Il est en pin maritime et donne un vrai cachet au lieu, même s'il garde des bonnes rainures et quelques trous à certains endroits. Cela apporte du charme à l'appartement et permet de ne pas donner la sensation d'un logement neuf tout droit sorti de chez le promoteur", estime l'architecte d'intérieur. Un travail important a aussi été réalisé au niveau des poutres, qui ont toutes été déclouées et poncées.
Conserver le cachet de l'ancien
Une cuisine entièrement sur mesure
La cuisine après la rénovation © Yannick Bacqué
Après. Little Worker dispose de son propre service de conception de cuisine. Le client a donc travaillé avec les équipes de l'agence pour sélectionner l'aménagement, les matériaux et les couleurs de sa cuisine. "
Nous avions dans l'idée de créer un point de chute en fond de pièce avec cette teinte de vert et du noyer, que l'on retrouve aussi par touches dans le reste de l'appartement", explique Jérémy Cocq. Les façades et la crédence sont en mélaminé, le plan de travail en quartz. D'une longueur de 3,5 mètres, celui-ci a notamment été le point de départ de la réflexion autour du mur biseauté du couloir : "
Sans cela, il aurait été impossible de le faire entrer dans l'appartement", justifie l'architecte d'intérieur.
La porte sur la gauche mène à une buanderie, dont les nombreux rangements ont permis l'aménagement épuré et allégé de la nouvelle cuisine. "
Nous y avons prévu un espace pour un lave-linge et un sèche-linge." Elle comprend également un chauffe-eau instantané pour alimenter la cuisine en eau chaude, celle-ci étant trop éloignée du ballon.
Une cuisine entièrement sur mesure
Une pièce de vie sombre
Une pièce de vie sombre - La pièce de vie avant la rénovation © Yannick Bacqué
Avant. Cette autre vue de la pièce de vie permet de se rendre compte de l'ancien cloisonnement, avant l'ouverture de la tropézienne et la pose de la baie fixe.
Une pièce de vie sombre
Et la lumière fut
Et la lumière fut - La pièce de vie après la rénovation © Yannick Bacqué
Après. Á cet endroit précis, le défi a été de respecter la pente du toit de manière à créer un espace confortable près de la baie. "
La tropézienne étant surélevée par rapport à la pièce de vie et au couloir, nous avons aussi dû faire en sorte d'avoir une hauteur de passage suffisante", complète Jérémy Cocq.
Et la lumière fut
La gestion des pentes de toit
La chambre d'ami avant la rénovation © Yannick Bacqué
Avant. L'aménagement de cette pièce était contraint par la pente de toit importante, faisant descendre la hauteur sous plafond à 1,25 mètre seulement au niveau le plus bas.
La gestion des pentes de toit
Une petite chambre d'ami
La chambre d'ami après la rénovation © Yannick Bacqué
Après. L'architecte d'intérieur a donc proposé d'en faire une chambre d'appoint avec un coin bureau. Il avait imaginé des rangements sur mesure pour optimiser les espaces sous pentes, mais, pour des questions de budget, le propriétaire n'a pas souhaité les réaliser dans l'immédiat.
Une petite chambre d'ami
Une chambre à réinventer
La chambre parentale avant la rénovation © Yannick Bacqué
Avant. Voici l'espace où a été aménagée la nouvelle chambre parentale avec sa salle de bain attenante. La cheminée d'origine n'a pas été conservée et les réseaux ont été déplacés dans une pièce voisine.
Une chambre à réinventer
Une suite parentale confortable
La chambre parentale après la rénovation © Yannick Bacqué
Après. Toutes les chambres ont été conçues pour pouvoir accueillir des dressings en temps voulu.
Une suite parentale confortable
Décor tout en douceur dans la salle de bain
La nouvelle salle de bain parentale © Yannick Bacqué
Après. La décoration de la salle de bain parentale a été souhaitée neutre et intemporelle, avec des zelliges beiges sur les murs, associés à une peinture rose poudré, un carrelage effet carreaux de ciment au sol, une robinetterie en laiton et un meuble vasque en bois foncé. "
Nous avons souhaité apporter une touche authentique, rappelant les vieux chiffonniers", ajoute Jérémy Cocq.
Décor tout en douceur dans la salle de bain
Ambiance naturelle dans les chambres
La chambre après la rénovation © Yannick Bacqué
Les deux autres chambres du logement se construisent de la même manière. Leur décoration reste sobre, mais chaleureuse, avec des matières naturelles et des tonalités douces.
Ambiance naturelle dans les chambres
Une salle de bain assortie
La nouvelle salle de bain commune © Yannick Bacqué
Plus classique, la salle de bain commune se pare de rayures alternant le vert sauge et le blanc. La robinetterie noire apporte du relief quand le meuble vasque en bois clair renforce le côté naturel de la décoration. Les deux salles de bains ont été surélevées pour permettre le passage des évacuations.
Les travaux ambitieux entrepris par l'agence Little Worker ont permis de rendre désirable ce plateau vide soumis à de nombreuses contraintes structurelles. Pour l'anecdote, le propriétaire des lieux a reçu de nombreuses propositions d'achat de la part de ses amis depuis la réalisation de la rénovation.
Une salle de bain assortie