L'appartement après la rénovation © Camille Payat
Au sixième et dernier étage sur rue d'un immeuble en pierre de taille des années 1.800, l'appartement issu du rattachement de deux chambres de bonnes avait tout du studio locatif sans âme : sol en stratifié, murs blancs, mobilier posable réduit au strict minimum. Les propriétaires, des expatriés en Suisse avec deux enfants qui souhaitent s'y rendre une fois par mois, ont eu le coup de cœur pour sa vue dégagée et sa lumière généreuse. "
Ils avaient un budget serré et une idée très précise de ce qu'ils voulaient : un esprit poétique à l'anglaise, inspiré de la décoration de leur maison en Suisse, un réagencement de la pièce cuisine/salle de bains et quatre couchages", expose Anastasia Huard qui a brillamment relevé le défi.
Fiche technique
Qui vit ici ? Un couple d'expatriés basé en Suisse
Emplacement : Paris, 6e arrondissement
Superficie : 28 m²
Durée des travaux : 3 mois
Livraison : mai 2025
Budget travaux : 45.000 €
Budget mobilier & déco : 5.000 €
Verrière : Verrière Atelier d'Artiste, Saint-Étienne
Entreprise de travaux : Société Ama

Plan avant travaux © Studio Insolite
Avant. Les lieux avant travaux se présentaient comme deux chambres de bonnes réunies en un seul studio locatif. En entrant, on accédait directement à la pièce principale séparée de la zone nuit par une cloison pleine. Dans une excroissance biscornue à gauche de la porte d'entrée, cuisine et salle de bain cohabitaient dans un espace exigu et peu rationnel, avec notamment une douche atypique et un évier qui servait de lavabo. Par ailleurs, l'appartement affichait un DPE en classe G, rendant une mise à niveau énergétique difficilement évitable. "
Les propriétaires ont eu peur de l'aménagement au niveau de la salle de bains, qui avait des volumes très contraints. La douche faisait 58 centimètres de large ; ils ne savaient vraiment pas quoi faire avec ça et c'est pourquoi ils se sont tournés vers un accompagnement professionnel", explique Anastasia Huard.

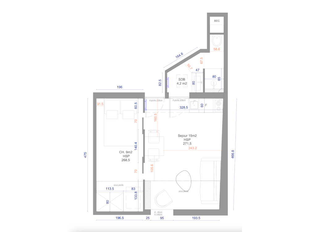
Plan après travaux © Studio Insolite
Après. La transformation majeure a concerné la petite pièce d'eau, désormais entièrement dévolue à la salle de bains. Pour libérer cet espace, la cuisine a été rapatriée dans la pièce de vie et intégrée dans un meuble semi-sur-mesure. Repensée en totalité, la chambre est devenue un confortable et cosy espace nuit, digne d'une chambre d'hôtel. Avant de s'adonner à la décoration des lieux, Anastasia Huard a conseillé de traiter l'enveloppe avec une isolation renforcée en laine de roche au plafond et sous les rampants et l'installation d'une VMC hygro dans les pièces humides. "
Je conseille toujours à mes clients d'anticiper une location éventuelle si leur situation change. Or la loi exige que dans moins de cinq ans, les DPE soient réhaussés. Ces travaux d'amélioration énergétique ont également un impact sur le confort quotidien", rappelle-t-elle.
Découvrez dans les pages suivantes, en images, la transformation avant/après de cet appartement.