Le nouveau bureau © Laura Innocente
La mission première de ce projet était de transformer un ancien bureau en chambre d'enfant dans l'appartement d'une famille de quatre personnes. Privé de son espace de travail, le père avait toutefois besoin d'un nouveau bureau et l'architecte Régine Louiset a tout de suite identifié l'opportunité de l'installer dans la loggia, moyennant quelques travaux d'isolation.
"
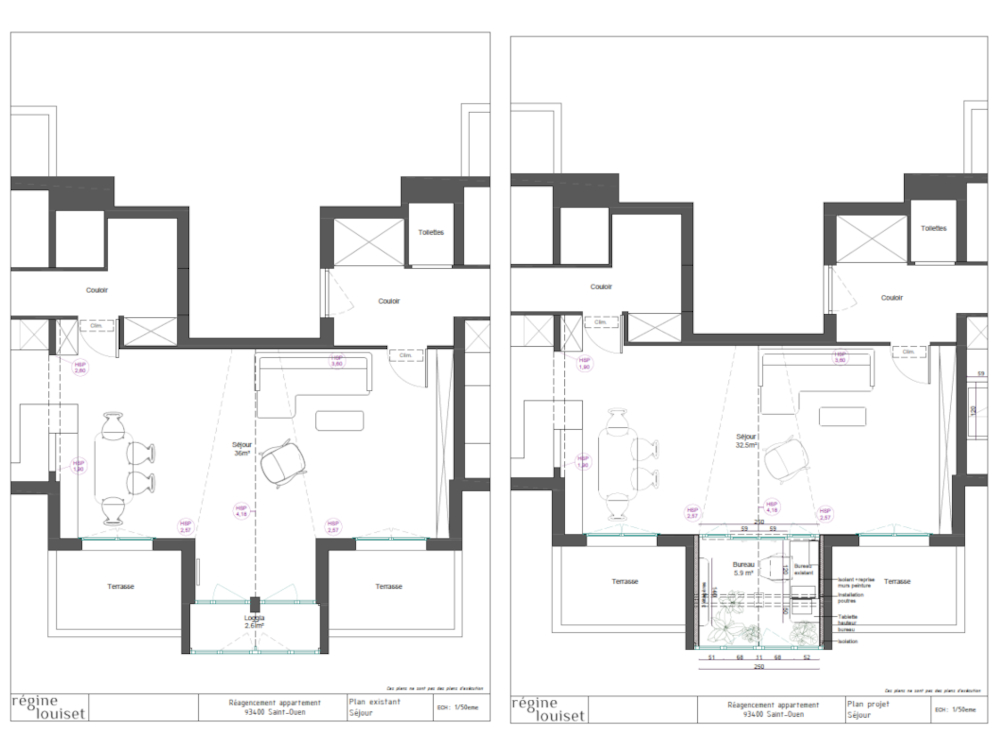
La loggia n'avait jamais été traitée et était humide. Elle n'avait pas grande utilité et donnait l'impression de perdre des mètres carrés", se souvient Régine Louiset. L'architecte a mis son expertise à profit en proposant de l'agrandir et de la relier au salon par une nouvelle verrière sur mesure. L'espace de 2,5 m² à l'origine est ainsi passé à 6 m² pour accueillir un espace de travail chaleureux et confortable, coupé de l'espace de vie sans être totalement isolé.
Fiche technique :
Qui vit ici ? Une famille avec deux enfants
Emplacement : Saint-Ouen
Superficie : 6 m² dans un appartement de 100 m²
Budget : 25.000 euros, avec l'isolation de la loggia
Date des travaux : d'octobre à décembre 2025

Plan avant et après du projet © Régine Louiset
Résultat de la réunion de deux logements, l'appartement de 100 m² est doté d'un plan symétrique, divisé en deux : l'aile des enfants d'un côté et celle des parents de l'autre. L'espace de la loggia, située au cœur de la zone de vie, a été agrandi de manière à ce que la nouvelle paroi soit alignée avec les murs du salon. La pièce passe ainsi d'une superficie de 2,5 m² à 6 m².

Plan après de la loggia © Régine Louiset
Afin d'optimiser au mieux les mètres carrés, l'architecte a fait intervenir un bureau d'études pour évaluer la possibilité de déposer le poteau situé au centre de l'espace. "
Ils ont démoli une petite partie du placo pour voir l'état de la charpente et vérifier que cela était possible", détaille Régine Louiset.
Découvrez dans les pages suivantes, en images, la transformation de la loggia en bureau.