Ce duplex de 230 m² est niché dans la moitié supérieure d'une ancienne ferme traditionnelle du 19e siècle, à la structure en poteaux-poutres bardée de mélèze, typique des chalets savoyards. Baptisé "Les Pettoreaux", il a été racheté par une famille élargie en quête d'un refuge convivial pour dix à quinze personnes. Souhaitant allier authenticité alpine et confort moderne, elle a contacté la décoratrice d'intérieur lyonnaise Alexandra Hilvert via la boutique de meubles OCBO dans le 6e arrondissement de Lyon. "
Cette famille ne savait pas comment rendre chaleureux les lieux ; elle voulait un endroit très moderne au départ. Tout mon travail a été de nous baser sur l'histoire de ce vieux chalet pour conserver de l'authenticité et apporter un maximum de charme", explique-t-elle.
Intervenue après la démolition, Alexandra a repensé l'agencement en deux zones : l'espace nuit au niveau bas (où se trouve également l'entrée), et les pièces de vie en haut, profitant ainsi du balcon et des vues splendides sur le Mont d'Arbois, tout en relevant les défis de lumière naturelle limitée et de basses hauteurs sous plafond.
Fiche technique :
Qui vit ici ? Une grande famille
Emplacement : Megève
Superficie : 230 m² (190 m² Carrez)
Date des travaux : 6 mois en 2024
Budget : 500.000 euros (dont 60.000 euros pour le mobilier et la déco)
Alexandra Hilvert, 61 rue Pierre Corneille, 69006 Lyon

Plan avant du projet © Alexandra Hilvert
Avant. Ce duplex, issu d'une ferme réaménagée, présentait un étage supérieur morcelé. Une vaste pièce de vie, soulignée d'un balcon filant, disposait d'un incroyable potentiel panoramique, tandis qu'à l'arrière, sous des rampants assez bas, se trouvaient deux espaces plus petits : d'un côté, une étroite cuisine coincée derrière le conduit de cheminée ; de l'autre, derrière un semi-cloisonnement existant en poutres, un recoin pressenti comme salon ou dortoir enfants. "
Le plan était problématique : ces contraintes structurelles empêchaient de tout décloisonner pour créer une grande pièce de vie", se remémore Alexandra Hilvert.

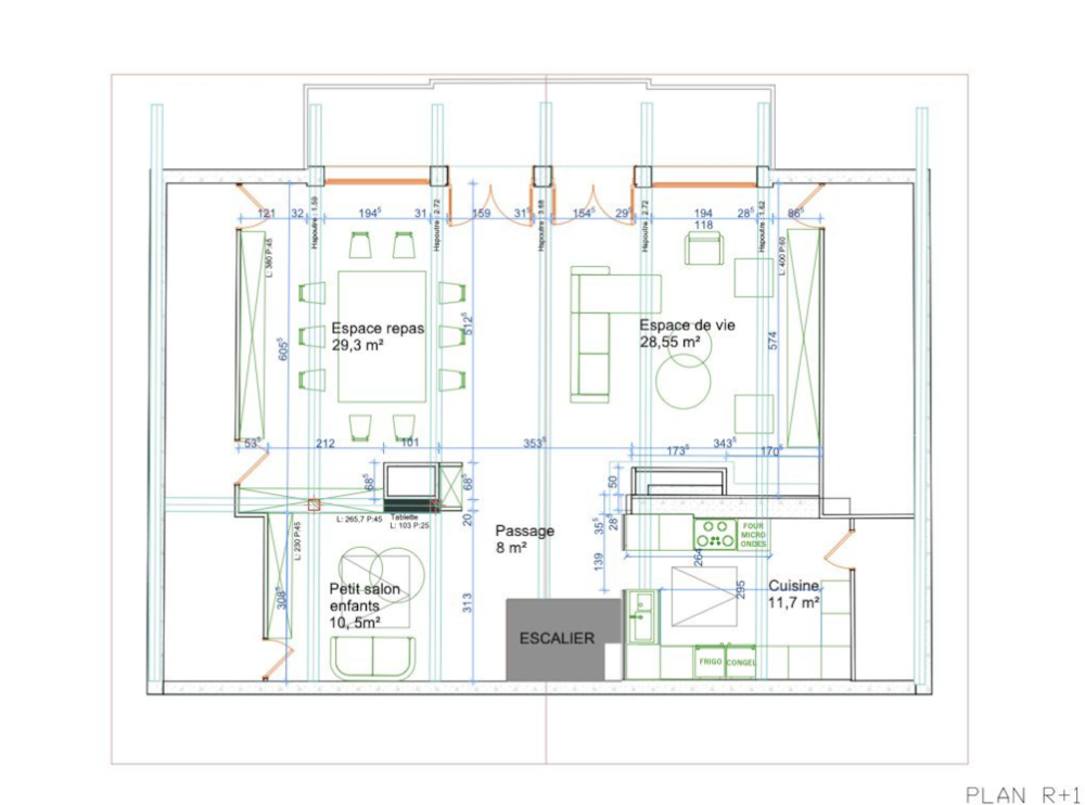
Plan après du projet © Alexandra Hilvert
Après. Alexandra a redessiné l'étage tel un vaste espace jour ouvert. Le salon et la salle à manger captent les vues majestueuses du massif de l'Arbois par le balcon filant. Afin de pallier l'étroitesse de la cuisine, la professionnelle a proposé de créer une
cuisine ouverte doublée par une arrière-cuisine fermée, dans laquelle s'insèrent discrètement une colonne
buanderie et des toilettes, inexistantes à cet étage. '
La taille de la cuisine initiale n'était pas cohérente avec celle de la famille. Mieux valait un second espace pour stocker les courses qu'une zone enfant contiguë à l'espace de vie et de détente', justifie la décoratrice d'intérieur.
Découvrez dans les pages suivantes, en images, la transformation avant/après de ce duplex.
Une pièce de vie spacieuse
La pièce de vie avant les travaux © Alexandra Hilvert
Avant. Voici la plus belle partie du niveau supérieur, dans l'état où l'a découverte la décoratrice d'intérieur Alexandra Hilvert. '
La démolition venait de se terminer. Cette grande enfilade en pin était sur le point d'être jetée, je l'ai sauvée', plaisante-t-elle.
Une pièce de vie spacieuse
Une charpente mise en valeur
La pièce de vie après les travaux © Steeve Ambill/Igor Properties
Après. Salon, salle à manger et cuisine ouverte se déploient désormais avec élégance à l'étage. La zone centrale de la pièce de vie a été dégagée afin de laisser circuler la lumière et de profiter de la vue unique sur le massif montagneux depuis l'escalier d'accès. Cet agencement met en valeur la remarquable charpente en bois conférant à la pièce un plafond cathédrale.
"
J'ai veillé à une ambiance contrastée, avec des touches textiles claires soulignées d'éléments noirs pour rehausser la luminosité des lieux. Nous avons joué sur un décor à la fois authentique et moderne, comme en témoignent les plafonniers qui rappellent de manière contemporaine les cloches des vaches et ancrent le projet dans l'histoire des lieux", explique la décoratrice d'intérieur.
Suspension : modèle Margot par Angel des Montagnes.
Une charpente mise en valeur
Une cuisine trop petite
La cuisine avant les travaux © Alexandra Hilvert
Avant. A droite de l'escalier et derrière le conduit de cheminée du séjour, la cuisine d'origine (10,5 m²) laissait peu d'espace et de rangements pour une vie à quinze… "
La problématique de la cuisine était le plus gros défi d'aménagement de ce chantier en termes d'optimisation de l'espace", expose clairement Alexandra.
Une cuisine trop petite
Une cuisine en deux temps
L'arrière-cuisine après les travaux © Steeve Ambill/Igor Properties
Après. Transformée en arrière-cuisine fermée avec évier, lave-vaisselle, four et frigo (doublant les équipements de la cuisine), les moins chauvins d'entre nous diront que cette nouvelle pièce est un véritable couteau suisse. "
La double mission de cette arrière-cuisine est d'offrir un stockage conséquent pour épurer la pièce de vie et de servir à préparer à manger discrètement sans utiliser la cuisine, ce qui peut être pratique lorsqu'on fait de la tartiflette (rires). On l'a travaillée afin de ne pas perdre d'espace sous pente", explique Alexandra Hilvert.
Cette pièce intègre également une buanderie, avec lave-linge et sèche-linge superposés, et même des toilettes pour éviter un accès direct depuis les espaces communs, un autre défi qui a demandé à la professionnelle d'optimiser les plans au centimètre en raison de la présence de l'escalier.
Une cuisine en deux temps
Réorganiser les espaces de vie
Réorganiser les espaces de vie - La cuisine avant les travaux © Alexandra Hilvert
Avant. Derrière les poutres obliques et ce placard à la façade miroir, le recoin pressenti comme salon ou dortoir enfants était mal adapté, trop proche des espaces communs et confiné par une faible hauteur sous plafond. "
J'ai tout de suite dit que ce n'était pas une bonne idée de mettre les enfants au niveau pièces de vie", se souvient Alexandra Hilvert.
Réorganiser les espaces de vie
L'élégance en cuisine
La cuisine après les travaux © Steeve Ambill/Igor Properties
Après. Faisant face à l'arrière-cuisine, la nouvelle cuisine ouverte se niche dans l'espace sous pente de l'autre côté de l'escalier. L'îlot luxueux en quartzite noir veiné de blanc tourne habilement autour des éléments de structure existants, transformant la contrainte en atout. Les poteaux porteurs et poutres obliques en pin créent en effet un semi-cloisonnement bienvenu avec la salle à manger.
Sur la gauche, une zone 'mange debout' a été prévue pour les petits déjeuners, prolongée par des colonnes de rangement, lesquelles dissimulent entre autres congélateur et réfrigérateur.
L'élégance en cuisine
Une attention portée aux détails
Une attention portée aux détails - La cuisine après les travaux © Steeve Ambill/Igor Properties
"
L'électroménager haut de gamme se conjugue aux finitions soignées pour créer une atmosphère luxueuse sans perdre le côté convivial", affirme la professionnelle. L'équipement premium met en vedette, au premier plan, une cave à vin "
indispensable pour accompagner la raclette d'un verre de blanc". Placée dans la circulation vers le séjour, elle confère un air cossu et chaleureux à l'ensemble, tout comme les tableaux qui ponctuent l'espace. A l'arrière, on distingue un plan de cuisson avec hotte intégrée, tandis qu'en fond de pièce, quatre éléments s'intègrent discrètement dans un mural de rangement noir (fours, micro-ondes, machine à café et chauffe-plat) pour jouer sur la subtilité. Afin d'aérer la cuisine, les fenêtres de toit ont été équipées d'une ouverture électrique.
Une attention portée aux détails
Optimiser la lumière naturelle
Optimiser la lumière naturelle - La cuisine après les travaux © Steeve Ambill/Igor Properties
De grands miroirs placés au-dessus de l'escalier, face à la baie vitrée, amplifient la lumière en fond de pièce, surtout en fin de matinée quand le soleil irradie l'espace. "
La lumière a constitué un axe central du projet. Les miroirs agissent comme des fenêtres supplémentaires, invitant la lumière et la nature à pénétrer les lieux. Par ailleurs, l'éclairage a été pensé de manière majoritairement indirecte, pour souligner les lignes architecturales, créer des ambiances feutrées et éviter toute agressivité visuelle. Ainsi les atmosphères évoluent au fil de la journée, en accompagnement de la lumière naturelle", décrypte Alexandra.
Optimiser la lumière naturelle
Un séjour séduisant
Le salon avant les travaux © Alexandra Hilvert
Avant. Attenant à la salle à manger, le coin séjour de plus de 28 m² avec son insert et sa vue magnifique a séduit les acquéreurs.
Un séjour séduisant
De l'intimité retrouvée
Le salon après les travaux © Steeve Ambill/Igor Properties
Après. Transformé en espace de conversation semi-fermé pour une "intimité cocooning", le séjour tourne autour de la cheminée avec un grand canapé clair habillé de plaids laineux et de coussins texturés, créant un lieu propice aux moments familiaux. "
J'ai voulu un salon vivant où on puisse discuter, jouer au backgammon sur la table centrale en bois brûlé", confie la décoratrice, qui a misé sur des textures nobles, chaleureuses et minérales inspirées par les montagnes alentour. Ainsi les radiateurs d'antan ont été changés pour des modèles discrets recouverts de feuilles d'ardoise. La télévision, conservée par les propriétaires et encadrée de bardage en mélèze texturé, surplombe l'insert qui repose désormais sur un socle en quartzite à la finition cuir pour une texture douce et tactile.
Table basse : Poutre de chez Maison Yak ; Radiateur : Radiateur à inertie Wifi Ardoise Noire 800W Vertical - Valderoma (Réf. AN08VEW) ; Coussin : en fourrure d'agneau du Tibet - Maison Yak.
De l'intimité retrouvée
Donner du sens aux espaces
Donner du sens aux espaces - La pièce de vie avant les travaux © Alexandra Hilvert
Avant. Cette photo a été prise depuis le salon en regardant vers l'espace salle à manger de près de 30 m².
Donner du sens aux espaces
Une décoration moderne et chaleureuse
Une décoration moderne et chaleureuse - Le salon après les travaux © Steeve Ambill/Igor Properties
Après. "
Nous sommes allés chercher la signature et les belles références comme avec le tapis de chez Maison Yak ou le parquet en pin de chez Carresol", explique Alexandra Hilvert.
Une décoration moderne et chaleureuse
Réutiliser les éléments existants
La salle à manger avant les travaux © Alexandra Hilvert
Avant. Lorsque Alexandra a visité pour la première fois les lieux, cette enfilade en pin, réalisée artisanalement, se trouvait au milieu de l'espace salle à manger, attendant d'être désossée et jetée. Ce qui a fait bondir la pro, versée dans les valeurs éthiques et appréciant des décors ancrés dans l'histoire du pays et des artisans qui ont participé à la façonner.
Réutiliser les éléments existants
Conserver et sublimer pour un rendu plus contemporain
La salle à manger après les travaux © Steeve Ambill/Igor Properties
Après. Complétant le mange-debout de la cuisine, la salle à manger s'articule autour d'une table pour dix personnes en chêne fusain et acier laqué. "
Dans cette enveloppe authentique tout en bois, le textile clair des chaises et des rideaux apporte de la douceur, tandis que la table et les lampes créent du contraste", souligne Alexandra, qui a également veillé à intégrer des points de lumière indirecte pour illuminer les dîners de famille. "
On aurait pu mettre une table plus grande, mais les enfants et ados mangent souvent en premier et les adultes après", explique-t-elle.
Le meuble sur mesure a été ressuscité in extremis et habillé de portes, trouvant parfaitement son rôle d'enfilade pour ranger la vaisselle. A ses côtés, on distingue de discrets accès pour les sous-pentes qui renferment des zones techniques (ballon d'eau chaude, compteur…) et un gros volume de stockage.
Table à manger : Kimono de chez Bontempi ; Chaises : Margot avec pieds en bois et accoudoirs chez Maison Yak
Conserver et sublimer pour un rendu plus contemporain
Des pièces trop petites
Plan étage bas avant les travaux © Alexandra Hilvert
Avant. L'étage bas du duplex comprenait déjà une zone nuit avec cinq chambres (de 9 à 19,30 m²) et des salles de bain attenantes plutôt étriquées (moins de 3 m²). L'entrée de 5 m² était un passage sombre et sans rangement où prenait naissance l'escalier de l'étage.
Des pièces trop petites
Un espace nuit remodelé
Plan étage bas après les travaux © Alexandra Hilvert
Après. L'espace nuit a été remodelé en subtilité pour offrir un confort moderne avec un accent sur les rangements et la redistribution des salles de bain. Ce qui a néanmoins engendré de gros travaux dans cette partie, avec de nombreux décloisonnements puis la reconstruction de cloisons. Désormais, cet étage se compose de quatre suites confortables et d'un dortoir enfants, chacun se voulant un refuge paisible après une journée passée à explorer les pistes ou à profiter de l'air pur de la montagne. Chaque chambre bénéficie de sa salle de bain, garantissant intimité et confort à tous les occupants.
Un espace nuit remodelé
Une entrée peu fonctionnelle
L'entrée avant les travaux © Alexandra Hilvert
Avant. Au niveau bas du duplex, l'entrée principale était peu fonctionnelle pour un chalet familial, avec un espace perdu sous l'escalier et une absence totale de rangements. "
C'était sombre et sans la moindre optimisation pour une grande famille qui débarque des pistes", note Alexandra Hilvert, insistant en particulier sur le défi posé par le manque de luminosité à cet étage.
Une entrée peu fonctionnelle
Une circulation fluidifiée
L'entrée après les travaux © Steeve Ambill/Igor Properties
Après. Repensée pour fluidifier la circulation et augmenter la fonctionnalité des lieux, l'entrée intègre une banquette pratique pour se chausser, des rangements astucieux sous l'escalier pour anoraks, casques et effets personnels, tandis que des casiers à skis ont été installés sur le palier extérieur.
Une circulation fluidifiée
Valoriser les matériaux locaux
Valoriser les matériaux locaux - L'entrée après les travaux © Steeve Ambill/Igor Properties
Le mélèze chaleureux au sol et aux murs contraste avec des accents minéraux subtils comme un grand encadrement réalisé en feuille d'ardoise pour amplifier la sensation de refuge montagnard.
Des astuces ont dû être trouvées pour illuminer le niveau rendu sombre par la forêt de pins environnante. "
J'ai intégré des appliques murales, des systèmes de rétroéclairages et des faux plafonds dans les salles de bain pour que ce niveau paraisse véritablement lumineux, accueillant et chaleureux", explique la décoratrice d'intérieur.
Valoriser les matériaux locaux
Toujours plus de rangements
Le couloir des chambres après les travaux © Steeve Ambill/Igor Properties
Après. Un couloir prolonge l'entrée, offrant des placards dédiés aux serviettes de toilette et aux besoins de rangement des deux suites qui en sont dépourvues. "
Nous avons tenu à préserver le bardage bois au maximum pour ancrer l'authenticité alpine dès l'entrée. J'étais très attachée au fait que cela ne ressemble pas à un lieu tout blanc et impersonnel au point d'en oublier que l'on est dans un chalet traditionnel", explique Alexandra Hilvert qui a eu un échange nourri avec ses clients à propos de ce sujet. "
Ils ont totalement convenu à la fin du projet que l'on aurait perdu l'authenticité de la vieille ferme en peignant tout en blanc", glisse-t-elle avec le plaisir d'avoir été entendue.
Toujours plus de rangements
Une grande suite parentale
La suite master après travaux © Steeve Ambill/Igor Properties
La suite parentale avant travaux se composait d'une chambre de 19,30 m², la plus grande de toutes, et d'une salle de bain attenante de seulement 3,82 m².
Cette suite qui bénéficie d'une vue majestueuse sur la montagne a vu sa superficie réduite à 15 m² afin de lui conférer des éléments de confort comme une grande salle de bain de 7 m² et un dressing. L'ambiance a été souhaitée la plus claire possible, rehaussée de quelques touches de gris-vert pour un effet relaxant et un prolongement en intérieur des teintes naturelles de la montagne.
Une grande suite parentale
Des astuces dissimulées
Des astuces dissimulées - La suite master après travaux © Steeve Ambill/Igor Properties
La tête de lit a été équipée de veilleuses latérales pour le confort de lecture, tandis qu'en pied de lit un écran rétractable a été dissimulé en prévision de soirées cinéma relaxantes.
Des astuces dissimulées
Une salle de bain trop petite
Salle de bain de la suite master en cours de travaux © Alexandra Hilvert
Avant. La salle de bain a été agrandie de 3 à 7 m² pour offrir un salon de bain moderne et confortable.
Une salle de bain trop petite
Pensée tel un spa
Salle de bain de la suite master après travaux © Steeve Ambill/Igor Properties
Après. Attenante à la suite parentale, cette salle de bain repensée sur 7 m² devient un sanctuaire de bien-être avec une douche spacieuse et une baignoire balnéo. Le charme de la charpente a été conservé au centre avec un rétroéclairage la mettant en valeur.
Pensée tel un spa
Des suites dotées de tout le confort nécessaire
Les deux autres suites après travaux © Steeve Ambill/Igor Properties
Deux autres suites sont plus compactes, mais chacune avec son espace douche dédié. "
J'adore les espaces vivants, avec des détails qui racontent une histoire, des tableaux, des textures, pour que ça ne ressemble pas à un hôtel impersonnel", confie la décoratrice d'intérieur en les visitant.
Dans ces chambres, elle a souhaité miser sur une ambiance montagnarde traditionnelle conservant le bardage bois et renforçant l'authenticité avec des portes en vieux bois fabriquées par un menuisier local. Les chambres sont modernisées par des motifs et des textures douillettes - velours des têtes de lit, laines bouclées des assises, tapis aux poils longs, courtepointes duveteuses, unies ou à carreaux, et des touches colorées dans les tons de sauge pour prolonger la végétation environnante.
Des suites dotées de tout le confort nécessaire
Quatre couchages dans un mouchoir de poche
Chambre enfants avant travaux © Alexandra Hilvert
Avant. Cette chambre de 9 m² était la plus petite du projet.
Quatre couchages dans un mouchoir de poche
Un dortoir optimisé
Le dortoir après les travaux © Romain Gouttefangeas (Chemin2Traverse) / Igor Prop
Après. Comme dans les autres chambres, la professionnelle a réalisé toute la décoration des lieux. Elle a même poussé les choses assez loin, galvanisée par le défi de nicher quatre lits dans un si petit espace. "
J'ai adoré travailler le dortoir avec des superposés dans l'esprit cabane, une petite lumière dans chaque lit pour lire le soir, et un petit bureau pour qu'un enfant puisse poser ses dessins", explique Alexandra Hilvert.
D'adorables détails comme les totems et le tabouret mouton de chez Maison Yak ainsi que les ours en peluche ou encore le tapis en fourrure nous donnent envie de venir nous assoupir ici comme Boucle d'Or.
Un dortoir optimisé
Un balcon avec vue
Le balcon © Steeve Ambill/Igor Properties
Au pied des pistes et dominant fièrement Megève, ce duplex réinventé par la décoratrice d'intérieur lyonnaise Alexandra Hilvert fait assurément rêver les passionnés de montagne. Hiver comme été, il s'est mué en un havre de paix et de convivialité, pensé pour des moments inoubliables en famille ou entre amis, où l'authenticité alpine se marie au confort moderne. Son atout maître ? Une situation exceptionnelle offrant, depuis le balcon, une vue panoramique sur la majestueuse nature du massif du Mont d'Arbois, une toile de fond vivante qui se renouvelle chaque jour au gré des lumières et des saisons.
Un balcon avec vue