Avant/Après : La métamorphose d'un chalet années 60 en Haute-Savoie
    Publié le 28 novembre 2025 par Agnès Carpentier

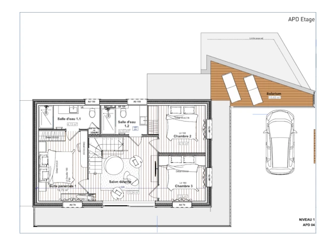
    Un étage plus ouvert et lumineux

    17/28
    R+1 Plan EDL après
    R+1 Plan EDL après © Studio Origami
    Avant la démolition, l'escalier en bois débouchait au centre de l'étage. Un couloir sans lumière naturelle desservait quatre chambres, dont une suite parentale avec salle d'eau, plus une grande salle de bains commune.
    L'étage reconstruit en ossature bois a été totalement restructuré. On arrive maintenant sur un vaste palier servant "d'espace de détente", lequel dessert trois chambres plus vastes et confortables, dont une suite. Une salle de bain est commune aux deux autres chambres.
    Un étage plus ouvert et lumineux
    • Avant/Après : La métamorphose d'un chalet années 60 en Haute-Savoie
    • Un bardage fatigué et des ouvertures traditionnelles
    • Un bardage pré-grisé et des ouvertures graphiques
    • Une entrée simple et un garage inadapté
    • Un espace d'accueil optimisé et chaleureux
    • Une cuisine d'antan fermée
    • Une cuisine graphique et semi-ouverte
    • Une cuisine datée, tout en pin
    • Une cuisine graphique et semi-ouverte
    • Un salon qui tourne le dos au paysage
    • La vue et le feu enfin réconciliés
    • Une décoration sobre et chaleureuse
    • Un espace central et lumineux
    • Une chambre encombrante ouverte sur le salon
    • Un espace de jeu et de convivialité
    • Un escalier modernisé
    • Un étage plus ouvert et lumineux
    • Une chambre qui bloquait toute la lumière de l'étage
    • Une suppression qui change tout
    • Une suite parentale démodée
    • Une suite parentale cosy et raffinée
    • Des chambres d'enfants basiques
    • Première chambre d'enfant
    • Des salles de bain désuètes
    • Minéralité montagnarde - Avant/Après : La métamorphose d'un chalet années 60 en Haute-Savoie
    • Des combles bas et inexploités
    • Un véritable étage supplémentaire
    • La suite sous combles
    Partagez cet article
    Articles qui devraient vous intéresser
     
    Recevez gratuitement
    La newsletter MAP
    L'e-magazine de l'habitat sous tous les angles
    Vous pouvez vous désabonner en un clic