Avant/Après : La métamorphose d'un chalet années 60 en Haute-Savoie
    Publié le 28 novembre 2025 par Agnès Carpentier

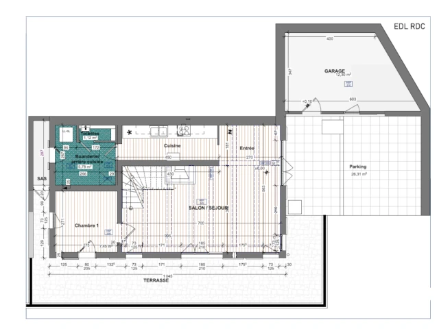
    Une entrée simple et un garage inadapté

    4/28
    RDC - Plan EDL avant
    RDC - Plan EDL avant © Studio Origami
    Avant. L'entrée se fait sur le côté du chalet, à côté d'un garage devenu trop petit pour les voitures actuelles. Le rez-de-chaussée comprenait le séjour, une cuisine couloir, une chambre et une buanderie/WC. L'ensemble était désuet, les propriétaires en attente d'une modernisation radicale.
    Une entrée simple et un garage inadapté
    • Avant/Après : La métamorphose d'un chalet années 60 en Haute-Savoie
    • Un bardage fatigué et des ouvertures traditionnelles
    • Un bardage pré-grisé et des ouvertures graphiques
    • Une entrée simple et un garage inadapté
    • Un espace d'accueil optimisé et chaleureux
    • Une cuisine d'antan fermée
    • Une cuisine graphique et semi-ouverte
    • Une cuisine datée, tout en pin
    • Une cuisine graphique et semi-ouverte
    • Un salon qui tourne le dos au paysage
    • La vue et le feu enfin réconciliés
    • Une décoration sobre et chaleureuse
    • Un espace central et lumineux
    • Une chambre encombrante ouverte sur le salon
    • Un espace de jeu et de convivialité
    • Un escalier modernisé
    • Un étage plus ouvert et lumineux
    • Une chambre qui bloquait toute la lumière de l'étage
    • Une suppression qui change tout
    • Une suite parentale démodée
    • Une suite parentale cosy et raffinée
    • Des chambres d'enfants basiques
    • Première chambre d'enfant
    • Des salles de bain désuètes
    • Minéralité montagnarde - Avant/Après : La métamorphose d'un chalet années 60 en Haute-Savoie
    • Des combles bas et inexploités
    • Un véritable étage supplémentaire
    • La suite sous combles
    Partagez cet article
    Articles qui devraient vous intéresser
     
    Recevez gratuitement
    La newsletter MAP
    L'e-magazine de l'habitat sous tous les angles
    Vous pouvez vous désabonner en un clic