Avant/Après : Insuffler un air méditerranéen dans une maison de 270 m²
    Publié le 29 avril 2026 par Claire Tardy

    L'étage des parents

    14/21
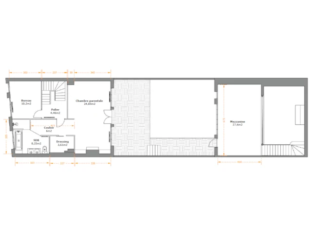
    Plan du premier niveau avant les travaux
    Plan du premier niveau avant les travaux © Ussel & Decoster
    Avant. Le premier étage est divisé en deux avec l'espace des parents au-dessus de la zone entrée/cuisine, et la mezzanine réservée aux enfants au-dessus de la salle à manger, avec salle de jeu et salon télé. Au niveau de la chambre parentale, un couloir de 6 m² non utilisé constituait un frein important à l'optimisation des lieux. La salle de bain d'origine méritait également d'être repensée.
    L'étage des parents
    • Avant/Après : Insuffler un air méditerranéen dans une maison de 270 m²
    • Une entrée à recloisonner
    • Une nouvelle entrée lumineuse
    • Une arche qui a fait débat
    • La verrière l'emporte
    • Une cuisine trop sobre
    • Une cuisine méconnaissable
    • Cacher l'indésirable
    • Un coin repas cocooning
    • Un couloir à optimiser
    • Une vaste pièce à vivre
    • Un salon cathédral
    • Un travail d'orfèvre au niveau de l'escalier
    • L'étage des parents
    • Un plan repensé
    • Une chambre parentale avec du potentiel
    • Une chambre tout en douceur
    • Une salle de bain trop grande et pas pratique
    • Une salle de bain rose
    • L'étage des enfants
    • La salle de bain ensuite
    Partagez cet article
    Articles qui devraient vous intéresser
     
    Recevez gratuitement
    La newsletter MAP
    L'e-magazine de l'habitat sous tous les angles
    Vous pouvez vous désabonner en un clic