Avant/Après : Insuffler un air méditerranéen dans une maison de 270 m²
    Publié le 29 avril 2026 par Claire Tardy

    L'étage des enfants

    20/21
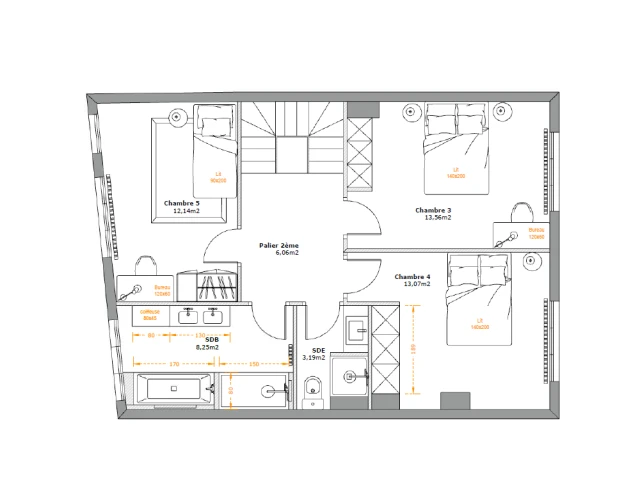
    Plan du deuxième étage après les travaux
    Plan du deuxième étage après les travaux © Ussel & Decoster
    Le deuxième étage de la maison est réservé aux enfants et donne accès au toit-terrasse de la maison. Il se compose de trois chambres, qui n'ont pas été concernées par la rénovation, et de deux salles de bain, dont seulement celle ensuite a fait l'objet de travaux.
    L'étage des enfants
    • Avant/Après : Insuffler un air méditerranéen dans une maison de 270 m²
    • Une entrée à recloisonner
    • Une nouvelle entrée lumineuse
    • Une arche qui a fait débat
    • La verrière l'emporte
    • Une cuisine trop sobre
    • Une cuisine méconnaissable
    • Cacher l'indésirable
    • Un coin repas cocooning
    • Un couloir à optimiser
    • Une vaste pièce à vivre
    • Un salon cathédral
    • Un travail d'orfèvre au niveau de l'escalier
    • L'étage des parents
    • Un plan repensé
    • Une chambre parentale avec du potentiel
    • Une chambre tout en douceur
    • Une salle de bain trop grande et pas pratique
    • Une salle de bain rose
    • L'étage des enfants
    • La salle de bain ensuite
    Partagez cet article
    Articles qui devraient vous intéresser
     
    Recevez gratuitement
    La newsletter MAP
    L'e-magazine de l'habitat sous tous les angles
    Vous pouvez vous désabonner en un clic