Avant/Après : Insuffler un air méditerranéen dans une maison de 270 m²
    Publié le 29 avril 2026 par Claire Tardy

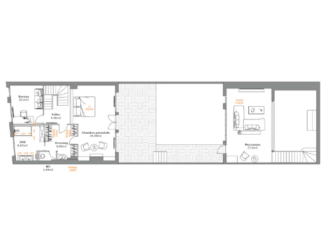
    Un plan repensé

    15/21
    Plan du premier niveau après les travaux
    Plan du premier niveau après les travaux © Ussel & Decoster
    Après. En repensant le plan de l'étage, les architectes d'intérieur sont parvenues à récupérer les 6 m² perdus du couloir pour créer un dressing de 8 m² et des WC séparés de la salle de bain, en réduisant la superficie de celle-ci grâce à la suppression de la baignoire. La structure de la belle chambre parentale, ouverte sur la terrasse, n'a pas été modifiée.
    Un plan repensé
    • Avant/Après : Insuffler un air méditerranéen dans une maison de 270 m²
    • Une entrée à recloisonner
    • Une nouvelle entrée lumineuse
    • Une arche qui a fait débat
    • La verrière l'emporte
    • Une cuisine trop sobre
    • Une cuisine méconnaissable
    • Cacher l'indésirable
    • Un coin repas cocooning
    • Un couloir à optimiser
    • Une vaste pièce à vivre
    • Un salon cathédral
    • Un travail d'orfèvre au niveau de l'escalier
    • L'étage des parents
    • Un plan repensé
    • Une chambre parentale avec du potentiel
    • Une chambre tout en douceur
    • Une salle de bain trop grande et pas pratique
    • Une salle de bain rose
    • L'étage des enfants
    • La salle de bain ensuite
    Partagez cet article
    Articles qui devraient vous intéresser
     
    Recevez gratuitement
    La newsletter MAP
    L'e-magazine de l'habitat sous tous les angles
    Vous pouvez vous désabonner en un clic