L'appartement après les travaux © Amélie Colombet Intérieurs
Ce studio appartenait à un couple en fin de carrière qui avait un projet en deux temps : le louer d'abord, pour en profiter ensuite comme pied-à-terre. "
Ils souhaitaient un bien suffisamment qualitatif pour leur convenir, et en même temps capable de survivre à quelques années de location", résume Amélie Colombet. Double contrainte donc : des matériaux résistants et faciles d'entretien, et par ailleurs une belle enveloppe suffisamment neutre pour accueillir, le moment venu, les beaux objets et les œuvres d'art qu'ils adorent chiner depuis des années. "
On a fait simple et élégant", partage l'architecte d'intérieur. Le tout a été livré en trois mois de travaux, précédés de deux mois et demi de conception, et habité dès le lendemain de la remise des clés.
Fiche technique
Qui vit ici ? une locataire
Emplacement : Paris, 6e arrondissement, quartier du Bon Marché
Superficie : 23 m²
Conception : 2 mois et demi
Durée des travaux : 3 mois

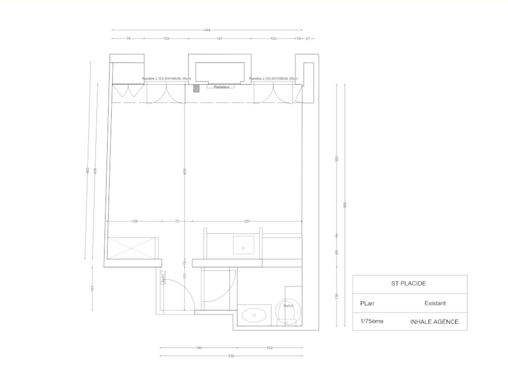
Plan de l'appartement avant les travaux © Amélie Colombet Intérieurs
Avant. Le studio s'ouvrait sur un étroit sas d'entrée desservant la salle d'eau, ce que d'emblée Amélie Colombet a trouvé peu pratique. La pièce unique, équipée d'une cuisine rudimentaire, présentait cependant une chance rare à ses yeux : "
A cet étage élevé, on a souvent des lucarnes ; ici la pièce de vie disposait de deux grandes fenêtres." Toutefois, elles descendaient très bas, rendant impossible toute implantation de mobilier ou de radiateur sous leurs appuis.

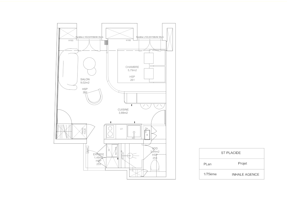
Plan de l'appartement après travaux © Amélie Colombet Intérieurs
Après. Les propriétaires étant désireux d'un coin nuit intime, cette nécessité a engendré une redistribution complète de l'espace. « On a posé le coin nuit autour d'une des fenêtres, ce qui a dicté l'espace restant pour la cuisine et le séjour tout autour », indique la professionnelle.
Ses idées astucieuses ont permis de déplacer l'accès à la salle de bains pour offrir à la place un placard de rangement à l'entrée, équipé du ballon d'eau chaude et du lave-linge. Dans la foulée, l'ensemble des réseaux a été repris (électricité, plomberie), l'isolation renforcée, les sols refaits ainsi que les menuiseries.
Autre astuce de la pro : "
On n'avait évidemment pas du tout envie, dans une petite surface, d'utiliser les murs pour les radiateurs et il était impossible d'en mettre sous les fenêtres. Nous avons donc utilisé une trame de chauffage au sol électrique sous un parquet compatible."
Découvrez dans les pages suivantes, en images, la transformation de l'appartement.