Le studio après la rénovation © Florian Wattier
Non loin de Pigalle, au quatrième étage d'un immeuble ancien, cet appartement de 18 m² n'avait jamais été rénové dans une logique d'optimisation et de confort. Récemment acquis par une famille de Montauban, désireuse d'en faire un pied-à-terre pour le père travaillant à la Défense et le fils entamant ses études dans la capitale, le bien avait besoin d'une refonte complète.
"
L'enjeu du projet était de concevoir un espace capable d'accueillir plusieurs usages, avec trois couchages, tout en conservant une bonne qualité de vie quotidienne", raconte l'architecte d'intérieur Valentina Petrovic, de l'agence AT IN'S Architecture. Le défi ? Intégrer toutes les fonctions souhaitées par les propriétaires, à savoir un espace nuit confortable, un coin repas, une cuisine équipée avec machine à laver, de nombreux rangements et une salle d'eau optimisée avec ballon d'eau chaude.
Fiche technique :
Qui vit ici ? Une famille pour ses déplacements
Emplacement : 9e arrondissement de Paris
Superficie : 18 m²
Date des travaux : 2023
Entreprise générale de travaux : Homerev
Budget : 60.000 euros
Valentina Petrovic, AT IN'S Architecture, atin.sarchitecture@gmail.com

Plan de l'appartement avant les travaux © AT IN'S Architecture
Avant. La configuration initiale des lieux était plutôt standard avec une cloison qui séparait l'appartement en deux pièces : un espace de vie avec cuisine et une chambre, sur laquelle s'ouvrait une petite salle d'eau. "
Avec cette cloison en plein milieu, l'appartement manquait de visibilité. La luminosité en provenance des deux seules fenêtres était obstruée et il n'y avait aucun visuel sur la pièce adjacente", décrit Valentina Petrovic, qui a rapidement décidé d'ouvrir complètement l'espace pour exploiter pleinement son potentiel.

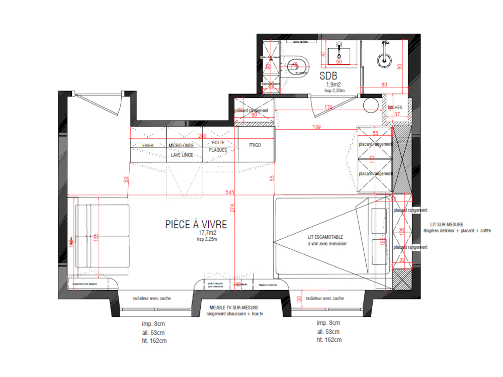
Plan de l'appartement après les travaux © AT IN'S Architecture
Après. La cloison déposée, l'architecte d'intérieur a conçu l'aménagement de la pièce unique comme une microarchitecture intérieure. "
Il fallait intégrer un maximum de rangement dans cet espace et trois couchages, tout en offrant la possibilité de pouvoir y vivre et y télétravailler au quotidien. Le tout dans seulement 18 m²", rappelle Valentina Petrovic. L'usage de la menuiserie sur mesure s'est donc révélé essentiel pour relever ce défi et multiplier les usages.
Découvrez dans les pages suivantes, en images, la transformation complète du petit appartement.