Ne sachant pas comment habiter cette grande maison de quatre chambres sur 210 m², les propriétaires ont fait appel à l'architecte d'intérieur et designer Esther Mirabel, de Mirabel Studio, pour mieux investir les espaces décloisonnés de la bâtisse. "
De retour en France après avoir vécu à Londres, la famille voulait créer un lieu de vie apaisant, mettant en avant la notion de retraite. Ne sachant pas comment s'y prendre pour orchestrer leur premier projet de rénovation, ils avaient besoin d'être guidés", se souvient Esther Mirabel.
L'architecte d'intérieur est donc intervenue sur l'aménagement du rez-de-chaussée et du premier étage de la maison. "
Nous avons refait toute l'électricité, qui n'était pas cohérente avec leurs besoins, revu les salles de bain et la cuisine, redistribué les pièces à l'étage et réorganisé les distributions", détaille Esther Mirabel.
Fiche technique :
Qui vit ici ? Une famille avec deux enfants
Emplacement : Île-de-France
Date des travaux : de février à septembre 2025
Superficie : 210 m²
Budget : 200.000 euros, mobilier compris (environ 50.000 euros)
Esther Mirabel, Mirabel Studio, 1 Rue Marguerin, Paris 75014

Plan du rez-de-chaussée avant la rénovation © Mirabel Studio
Le rez-de-chaussée de la maison était composé d'un double séjour complètement décloisonné, dont les circulations étaient imposées par la présence d'un pilier porteur en plein milieu. Si les grands volumes étaient un atout, avec une superficie de 120 m², leur configuration n'était pas simple pour créer un aménagement confortable, dans lequel la famille se sent bien.
En plus de redonner du sens à ces espaces ouverts, les propriétaires désiraient dissocier la zone privée des espaces de vie, pour redonner de l'intimité aux chambres et isoler les WC présents à ce niveau de la maison.

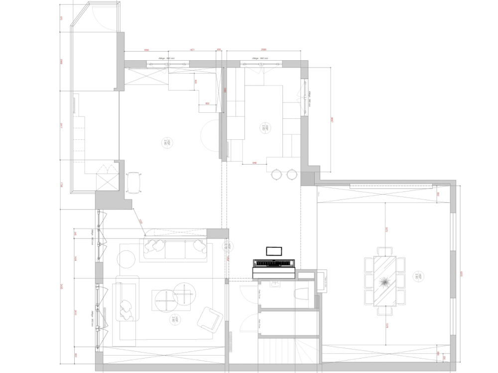
Plan du rez-de-chaussée après la rénovation © Mirabel Studio
Esther Mirabel a tout de suite identifié la possibilité d'ajouter des séparations avec des semi-ouvertures et des verrières opacifiantes, afin de laisser circuler la lumière naturelle. C'est ainsi que l'architecte d'intérieur est parvenue à encadrer la zone WC et escaliers pour redonner de l'intimité aux espaces privés. "
En séparant les différents espaces du rez-de-chaussée, nous avons également pu identifier leurs fonctions", précise l'architecte d'intérieur.
Découvrez dans les pages suivantes, en images, la rénovation avant/après de cette maison.
Une entrée avec un fort potentiel
L'entrée avant la rénovation © Mirabel Studio
Avant. Tout comme le reste de la maison, l'entrée avait du potentiel avec sa belle lumière naturelle et sa vue sur la végétation environnante depuis la véranda. La zone manquait toutefois d'aménagement et le radiateur, placé dans l'angle, diffusait très mal la chaleur. Les propriétaires n'utilisaient alors cet espace que pour stocker les chaussures.
Une entrée avec un fort potentiel
Optimiser le dessous des fenêtres
La nouvelle entrée © Yvan Moreau
Après. Esther Mirabel a d'abord identifié la possibilité de déplacer le radiateur sous les fenêtres pour le remplacer par un grand placard toute hauteur. L'aménagement se poursuit avec des banquettes en partie basse, dotées de rangements pour les chaussures.
En termes d'esthétique, le lien avec l'extérieur a été mis en avant par l'utilisation de matériaux et de couleurs naturels, comme le gris vert et le cannage. "
Cela évoque aussi l'idée d'une maison secondaire, répondant à leur envie de lieu où se réfugier", ajoute l'architecte d'intérieur.
Si les propriétaires étaient plutôt timides quant à l'usage des couleurs, ils se sont laissé convaincre par un choix plus audacieux et coloré pour remplacer l'ancien revêtement de sol qui n'était pas à leur goût. "
Cela permet de créer une identité dès l'entrée dans la maison", complète Esther Mirabel.
L'accès vers les espaces de vie se fait via le bâti d'une ancienne porte coulissante déposée, qui a été simplement rafraîchie.
Optimiser le dessous des fenêtres
Un salon vide
Le coin salon avant la rénovation © Mirabel Studio
Avant. Passée l'entrée, on découvre le séjour, vide de tout aménagement avant l'intervention de l'architecte d'intérieur. "
Les propriétaires revenaient tout juste de Londres et n'avaient aucun meuble, mis à part quelques pièces achetées temporairement. Ils avaient alors du mal à s'approprier les espaces de ce plateau vide", se souvient Esther Mirabel.
Un salon vide
Un salon devenu vitrine
Un salon devenu vitrine - Le nouveau salon © Yvan Moreau
Après. En parallèle de son activité d'architecte d'intérieur, Esther Mirabel vient de développer sa toute première collection de mobilier, baptisée Seuil. "
J'y réfléchissais depuis un moment car je travaille avec ma sœur, artiste peintre, sur des installations artistiques. Avec cette collection, j'ai cherché à questionner le rapport à la mémoire des lieux, entre l'art et l'architecture intérieure. L'idée étant de matérialiser les souvenirs, la dimension sensible que l'on a d'un lieu, et d'habiter autrement à une époque où l'on est saturé d'images, tout en redonnant une place au sacré", décrit la créatrice.
Cette réflexion s'intégrant bien dans ce projet, en accord avec la notion de refuge, Esther Mirabel a proposé d'utiliser son propre mobilier pour aménager le rez-de-chaussée. On y retrouve notamment la table basse, qui évoque un disque de tambour, et la banquette.
Ensemble, ils mettent en scène le meuble bibliothèque, réalisé sur mesure pour se confondre avec les murs et l'architecture de la maison. "
Avec deux enfants, mes clients avaient besoin de rangement et ne voulaient pas d'une télévision omniprésente dans leur salon. L'aménagement répond aux deux problématiques sans alourdir l'espace, en dissimulant l'écran derrière deux portes coulissantes sur rails. Ainsi, il existe aussi bien fermé qu'ouvert", décrit l'architecte d'intérieur. Les attentes électriques de la pièce ont été modifiées pour permettre le raccordement de tous les équipements en toute discrétion.
Un salon devenu vitrine
Des espaces partiellement recloisonnés
Des espaces partiellement recloisonnés - Le nouveau salon © Yvan Moreau
Le coin salon est aujourd'hui bien identifié grâce au retour de cloison, sa verrière et ses lignes arrondies. Des boiseries ont été recréées pour habiller l'ensemble des murs et relier esthétiquement les différentes pièces du rez-de-chaussée.
La console placée derrière le canapé Roche Bobois est une autre des pièces de la collection Seuil.
Des espaces partiellement recloisonnés
Un coin lecture pour les enfants
Vue du rez-de-chaussée © Yvan Moreau
Entre l'entrée et le coin canapés se trouve la seconde partie du double salon. "
Elle devait rester libre pour ne pas encombrer l'espace de circulation", précise Esther Mirabel. Ainsi, le nouveau poêle est agrémenté d'une zone pour les enfants dédiée à la lecture, avec un système de bibliothèque de faible profondeur, idéal pour les petits livres, et une banquette pour se lover au coin du feu.
Un coin lecture pour les enfants
Une cuisine flambant neuve
La nouvelle cuisine © Yvan Moreau
La cuisine était très sombre et a entièrement été refaite sur mesure avec l'aide d'un ébéniste. Les façades laquées et le plan de travail en bois s'associent avec un dallage pierre. "
Les clients voulaient quelque chose de neutre pour leur cuisine. Nous sommes donc partis sur des matériaux sobres et un système intelligent toute hauteur pour optimiser les rangements", précise l'architecte d'intérieur.
L'ensemble est relié aux autres espaces de vie par un comptoir, servant de coin snack et café. Sur sa gauche, le coffrage du radiateur est complété par un caisson renfermant les poubelles en partie basse.
Une cuisine flambant neuve
Une salle à manger qui dénote
La salle à manger avant les travaux © Mirabel Studio
Avant. L'une des raisons pour lesquelles les propriétaires avaient du mal à se projeter dans les espaces était la présence de revêtements disparates dans tout le rez-de-chaussée et le manque de cohérence dans les matériaux utilisés. L'architecte d'intérieur a donc proposé de trouver le juste équilibre entre rénovation et préservation de l'authenticité des lieux.
"
Le carrelage de la salle à manger, par exemple, ne leur plaisait pas, mais j'ai pu les convaincre de le conserver car j'étais persuadée qu'il pouvait être mis en valeur par une meilleure organisation des espaces", explique Esther Mirabel.
Une salle à manger qui dénote
Créer le lien par les matériaux
La nouvelle salle à manger © Yvan Moreau
Après. Cette zone comprend désormais une partie bureau, assez grande pour toute la famille, et une salle à manger. "
Il était important pour eux que tout le monde puisse faire ses activités, travailler, dans une même pièce", précise l'architecte d'intérieur.
La niche existante a été habillée avec le même carrelage posé en chevrons que dans la cuisine pour créer une unité visuelle entre les espaces. "
Il ajoute une touche graphique sans alourdir la décoration avec de la couleur", estime Esther Mirabel.
Créer le lien par les matériaux
Une salle à manger digne de ce nom
Une salle à manger digne de ce nom - La nouvelle salle à manger © Yvan Moreau
De l'autre côté de la pièce, un vaisselier a été intégré, doté d'un long plan de travail pour créer une respiration, dont les usages pourront évoluer avec le temps. Un miroir sur mesure en partie centrale apporte de la luminosité et crée un rappel avec le coin bureau. Devant, prennent place une table à manger et des chaises Kave Home.
"
Je ne voulais pas alourdir l'espace avec des aménagements, j'ai donc privilégié les rangements muraux, mais pas toute hauteur", ajoute l'architecte d'intérieur.
Une salle à manger digne de ce nom
Une circulation guidée par le recloisonnement
Le rez-de-chaussée © Yvan Moreau
La zone centrale du rez-de-chaussée a été conservée vide pour faciliter la circulation entre toutes les zones et l'accès aux espaces privés, situés à l'étage. L'escalier se trouve sur la gauche de la photo.
Une circulation guidée par le recloisonnement
Un étage redistribué
Plan de l'étage après les travaux © Mirabel Studio
L'étage de la maison accueille quatre chambres et deux salles de bains. Les pièces ont été redistribuées et les cloisonnements modifiés pour répondre aux besoins de la famille. L'accès à la salle de jeu, située entre les deux chambres, qui se faisait par l'une d'entre elles, a été modifié pour créer des pièces bien séparées les unes des autres.
Un étage redistribué
Une chambre parentale très mansardée
La chambre parentale avant les travaux © Mirabel Studio
Avant. La chambre parentale était très mansardée, avec des poutres qui alourdissaient l'espace. La configuration laissait également à désirer avec le lit collé au mur.
Une chambre parentale très mansardée
Une chambre champêtre
La nouvelle chambre parentale © Yvan Moreau
Après. Les poutres ont donc été repeintes en blanc et le lit réorienté pour permettre une meilleure circulation dans la pièce. Recouverte de tissu Casamance, la tête de lit matelassée et encastrée dans des rangements est habillée d'un système de papier peint avec des baguettes. "
C'est une manière de réinterpréter une ambiance traditionnelle. Le papier peint évoque le style anglais, pour ces clients qui ont longtemps vécu à Londres, et les baguettes, les codes à la française avec les boiseries", estime Esther Mirabel.
Une chambre champêtre
La chambre se prolonge en suite
La salle de bain parentale © Yvan Moreau
Attenante à la chambre, la salle de bains parentale met en valeur la charpente de la maison avec ses poutres peintes en blanc. Les deux espaces sont complétés par la présence d'un dressing sur mesure dans le couloir.
La chambre se prolonge en suite
Une charpente très présente
La chambre d'enfant avant les travaux © Mirabel Studio
Avant. Nous voici dans l'une des deux chambres d'enfants, marquée par la présence imposante de la charpente, qui rendait son aménagement difficile.
Une charpente très présente
Une chambre éclaircie
La nouvelle chambre d'enfant © Yvan Moreau
Après. Tout en gardant la même configuration, imposée par les poutres, l'architecte d'intérieur est parvenue à rendre la pièce plus lumineuse avec un papier floral et des murs blancs. Les rangements d'origine ont été conservés, mais leurs façades remplacées par des modèles blancs et moulurés.
Une chambre éclaircie
Une vraie chambre de pirate
La seconde chambre d'enfant © Yvan Moreau
Complètement neutre à l'origine, cette chambre a été métamorphosée pour répondre aux envies du petit garçon qui l'occupe, fan incontestable de pirates. Le lit a été aménagé avec un système de rangements, composé de caissons hauts. L'aménagement se poursuit ensuite en bureau.
Une vraie chambre de pirate
Une salle de jeu peu accessible
La salle de jeux avant travaux © Mirabel Studio
Avant. Avant de devenir la salle de jeu des enfants, cette pièce servait de stockage. Le couple souhaitait aussi en faire une chambre d'amis, qui pourrait être transformée en chambre de bébé à l'avenir.
Une salle de jeu peu accessible
Une pièce évolutive
La nouvelle salle de jeux évolutive © Yvan Moreau
Après. Afin de répondre à la demande des propriétaires, l'architecte d'intérieur a imaginé un bureau à bonne hauteur pour pouvoir être transformé en table à langer. Le tout agrémenté d'un papier peint poétique.
Une pièce évolutive
Une salle de bain désuète
L'ancienne salle de bain © Mirabel Studio
Avant. La salle de bain des enfants n'était pas optimisée, avec un renforcement non exploité et peu accessible qui servait de sèche-serviette.
Une salle de bain désuète
Une salle de bain pour la vie de famille
La nouvelle salle de bain © Yvan Moreau
Après. Trop haute, la baignoire d'origine a été remplacée par un modèle plus accessible pour les enfants et une douche à l'italienne, plus pratique, a été aménagée. L'architecte d'intérieur a réussi à convaincre les propriétaires de garder l'idée de la brique de verre, avec un modèle plus actuel, pour la paroi. Elle a opté pour des matériaux sobres, avec un zellige nacré autour de la baignoire et un sol en travertin.
Une salle de bain pour la vie de famille
Un projet sous le signe du sacré
Le talisman de la maison © Yvan Moreau
Impossible de parler de ce projet sans évoquer le talisman présent au rez-de-chaussée. "
Les clients voulaient un objet lié à la protection, mais sans connotation religieuse. J'ai donc imaginé cet objet pour ce projet. En marqueterie, il est composé de différents matériaux et fait désormais partie de la collection Seuil", décrit Esther Mirabel.
Les propriétaires étaient tellement ravis du résultat final de la rénovation qu'ils ont accepté que leur logement devienne une maison témoin pour le déploiement de la nouvelle gamme de mobilier de l'architecte d'intérieur.
Un projet sous le signe du sacré