L'appartement après les travaux © Sarah Khodri
Sur le point d'accueillir des jumelles, le couple de propriétaires est tombé sous le charme de ce 100 m² avec jardin, situé près des Buttes-Chaumont à Paris. Atypique, avec ses espaces très ouverts et ses murs biscornus, l'appartement, qui occupe les deux premiers étages d'un immeuble des années 1900, avait toutefois besoin d'être adapté à la vie de famille. Raison pour laquelle ils ont fait appel à la décoratrice et architecte d'intérieur Sophie Boichon, dont la mission a consisté à "
rénover et retravailler l'ensemble du niveau supérieur pour créer une véritable entrée, une suite parentale et une cuisine conviviale. Le tout tourné vers le jardin".
Le souplex profitant d'une classe énergétique convenable, le budget a pu être consacré à l'aménagement des lieux, notamment au niveau en rez-de-jardin comprenant l'entrée, la cuisine, le salon, la suite parentale et un bureau sur une superficie de 70 m².
Fiche pratique :
Qui vit ici : un couple sur le point d'accueillir des jumelles
Emplacement : Paris, près des Buttes-Chaumont
Superficie : intervention sur 70 des 100 m² de l'appartement
Date des travaux : d'octobre à décembre 2025
Budget : près de 50.000 euros
Sophie Boichon, décoratrice et architecte d'intérieur

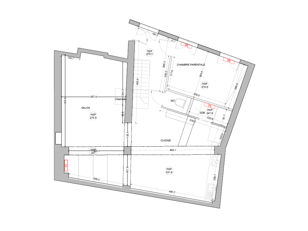
Plan du second niveau avant les travaux © Sophie Boichon
Avant. Les espaces de vie de l'appartement sont rassemblés sur le niveau supérieur, où se trouve également la suite parentale. Le tout s'organise autour d'un vaste plateau ouvert, offrant de beaux volumes et orienté vers le jardin, une denrée rare à Paris. Les formes atypiques des parois et l'irrégularité des murs rendaient toutefois difficile l'aménagement des espaces.
Les chambres et la salle de bain des enfants sont situées au niveau inférieur. Elles ont été conservées en l'état.

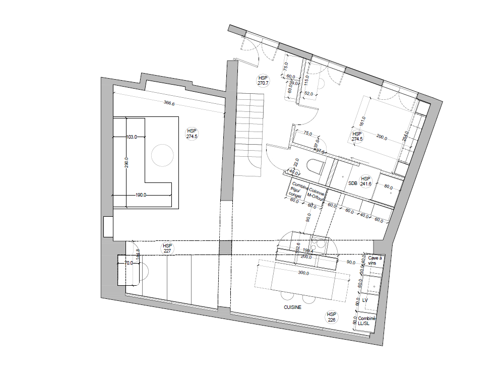
Plan du second niveau après les travaux © Sophie Boichon
Après. Afin de fluidifier les circulations et de faciliter l'aménagement des espaces, Sophie Boichon a entrepris de retravailler les accès sur l'ensemble du niveau supérieur. La porte de la chambre parentale a ainsi été déplacée pour libérer l'entrée, et celle de la salle de bain se fait désormais depuis la chambre et non la cuisine, pour libérer celle-ci.
Pour le reste, l'ensemble a été retravaillé avec la création d'une véritable entrée, d'une suite parentale, d'une cuisine avec îlot central et sa banquette tournée vers le jardin, ainsi que d'une bibliothèque sur mesure qui épouse les angles atypiques du mur du salon.
Découvrez dans les pages suivantes, en images, la transformation avant/après des lieux.