La façade © Capucine Suzet Battle
Entre la place de Wagram et Pont-Cardinet, dans le 17e arrondissement de Paris, le restaurant Boléa a ouvert ses portes en juillet dernier. L'événement n'est pas passé inaperçu auprès des habitants du quartier après les trois mois de travaux nécessaires à la transformation de l'établissement, orchestrée par les architectes d'intérieur de l'Atelier AIM.
"
Le couple de propriétaires nous avait déjà confié la rénovation de leur premier restaurant. C'est donc tout naturellement qu'ils ont fait appel à nous pour le second, après s'être associés avec une troisième personne", raconte l'architecte d'intérieur Margaux Tixier.
Pour ce projet, les propriétaires disposaient d'un budget plus confortable que celui alloué à leur premier restaurant. Aussi, l'absence de travaux à effectuer dans la cuisine a permis une belle rénovation de l'espace de restauration. "
Nous avons juste eu besoin de changer quelques prises qui n'étaient plus aux normes. La grande majorité du budget a été consacrée à la salle du restaurant et sa façade", précise la professionnelle.
Fiche technique :
Typologie du lieu : un restaurant bistronomique
Emplacement : 17e arrondissement de Paris
Superficie : 65 m²
Durée des travaux : 5 mois de conception et 3 mois de travaux
Date de livraison : juillet 2025
Budget : 65.000 euros
Atelier AIM, 10 bis rue Médéric, 92250 La Garenne-Colombes

Plan avant les travaux © Atelier AIM
Avant. Désireux d'un bel espace, les propriétaires ont été séduits par ce lieu pour la belle hauteur sous plafond de sa salle principale, en plus de son emplacement idéal près du boulevard Pereire.
Mais le local avait un point faible : la salle du fond, complètement séparée du reste du restaurant, donnait l'impression d'être à part. "
Le défi était de réussir à sublimer cet espace pour ne pas perdre de place assise dans le restaurant. Il fallait donner envie aux clients de s'y installer", se souvient Margaux Tixier.

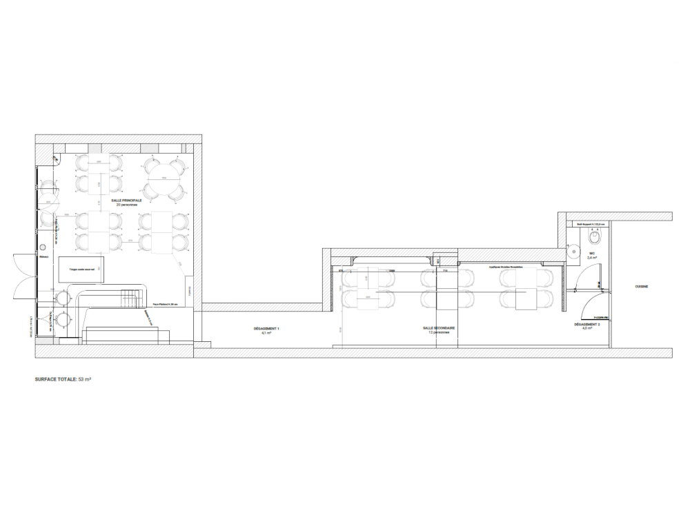
Plan après les travaux © Atelier AIM
Après. Les murs étant tous porteurs, il n'était pas possible de modifier les cloisons. La professionnelle a donc dû jouer avec le mobilier pour trouver des solutions d'aménagement astucieuses.
"
Dans la pièce du fond, nous avons réfléchi à un aménagement modulable des tables pour permettre une privatisation du lieu avec une grande tablée. Nous avons donc opté pour trois groupes de tables de quatre personnes à orienter selon les besoins, sans gêner la circulation vers la cuisine, qui se trouve tout au fond, et sans que celle-ci ne gêne les clients", décrit l'architecte d'intérieur.
Découvrez dans les pages suivantes, en images, la transformation avant et après de ce restaurant.