Avant/Après : Une maison de ville réorganisée pour une famille
    Publié le 17 novembre 2025 par Claire Tardy

    Un premier étage redistribué

    18/25
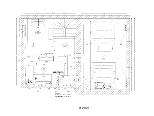
    Plan du premier étage après les travaux
    Plan du premier étage après les travaux © Alexandra Teboul
    Alexandra Teboul a retravaillé le plan du premier étage pour agrandir le bureau et purifier le volume de la salle de bains. Sa porte a également été déplacée en face de la chambre parentale pour en faciliter l'accès depuis la chambre, sans pour autant le fermer depuis le bureau, qui peut être amené à servir de chambre d'ami.
    Un premier étage redistribué
    • Avant/Après : Une maison de ville réorganisée pour une famille
    • Une grande entrée à réorganiser
    • La nouvelle entrée donne le ton
    • Créer des rangements sur mesure
    • L'ancienne cuisine repensée pour les besoins de la famille
    • Une cuisine chaleureuse grâce au bois
    • Un coin repas encombré
    • Un coin repas convivial
    • Un espace mal utilisé
    • Une salle à manger conviviale
    • Des cloisonnements en transparence
    • Faire circuler la lumière
    • Un salon manquant de chaleur
    • Un salon tourné vers l'extérieur
    • Des ouvertures travaillées
    • Conserver le charme de l'existant
    • Dérouler le fil rouge dans toute la maison
    • Un premier étage redistribué
    • Une grande chambre parentale
    • Une chambre inspirée des hôtels
    • Un grand dressing partagé
    • Une salle de bain biscornue
    • Une salle de bain plus spacieuse
    • Le dernier étage pour les enfants
    • Un décor plus géométrique
    Articles qui devraient vous intéresser
     
    Recevez gratuitement
    La newsletter Maison à Part
    L'e-magazine de l'habitat sous tous les angles
    Vous pouvez vous désabonner en un clic